EasyManua.ls Logo

AirTouch 2 - Page 59

AirTouch 2
68 pages
Print Icon
To Next Page IconTo Next Page
To Next Page IconTo Next Page
To Previous Page IconTo Previous Page
To Previous Page IconTo Previous Page
Loading...
59
NASA (
657229
)
Wiring Diagram
Wiring Diagrams contd.
1 3
2 4
E/M T Z1 Z2 Z3 Z4
Z8 Z7 Z6 Z5
RS485
Gateway
N L
24 VAC
B A
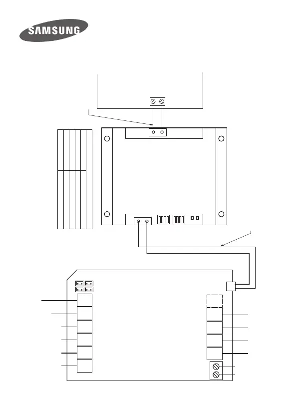
E/M: To Extension Module
T: To Touchscreen (Console)
Z1-Z8: To Zone Ports
1-4: Supply Air Sensors
RS 485: To AC Gateways
24 VAC: To Power Supply
To Damper Motors
To Damper Motors
AirTouch 2+
To Transformer
To Extension Module
To Touch Screen
(Optional)
R
S
4
8
5
A
+
B
-
H
o
m
e
K
it
S/A2
E/M T Z1 Z2 Z3 Z4
Z8 Z7 Z6 Z5 B2 B1
L N
RS485
A+ B-
S1
S2
S/A1-2: Supply Air Sensors
E/M: Extension Module
T: Touchscreen
Z1...Z8: Zone Dampers
L and N: 24V AC Power Supply
RS485: AC Gateway
AC Gateway
F3 F4
F3 F4
AirTouch 2 Plus
S/A1
657211 (RS485 Cable) from Polyaire
(Provided with the gateway)
Two stripped wires
(field prepared)
AC Indoor PCB
Gateway Address Setting
S1
Gateway Address
1000
1
0100 2
1100 3
0010 4
657229
Note:
1. 0-Off, 1-On, x-On
2. Samsung wall controller cannot be with the gateway at the same time
R
S
4
8
5
A
+
B
-
H
o
m
e
K
it
S/A2
E/M T Z1 Z2 Z3 Z4
Z8 Z7 Z6 Z5 B2 B1
L N
RS485
A+ B-
S3
S4
S1
S/A1-2: Supply Air Sensors
E/M: Extension Module
T: Touchscreen
Z1...Z8: Zone Dampers
L and N: 24V AC Power Supply
RS485: AC Gateway
AC Gateway
P1 P2
P1 P2
AirTouch 2 Plus
S/A1
657211 (RS485 Cable) from Polyaire
(Provided with the gateway)
Master/Slave Setting
S1 S4
Gateway As
0111 0000
Slave
1111 0000 Master
Two Core cable, stripped wires
field prepared
AC Indoor PCB
Gateway Address Setting
S3
Gateway Address
10000001 1
01000001
2
11000001 3
00100001 4
657212
Note:
0-Off, 1-On