EasyManua.ls Logo

Allen-Bradley 1756-OB16E - 1756-Ob8 Ei

Allen-Bradley 1756-OB16E
258 pages
To Next Page IconTo Next Page
To Next Page IconTo Next Page
To Previous Page IconTo Previous Page
To Previous Page IconTo Previous Page
Loading...
Rockwell Automation Publication 1756-UM058G-EN-P - November 2012 159
Wiring Diagrams Chapter 8
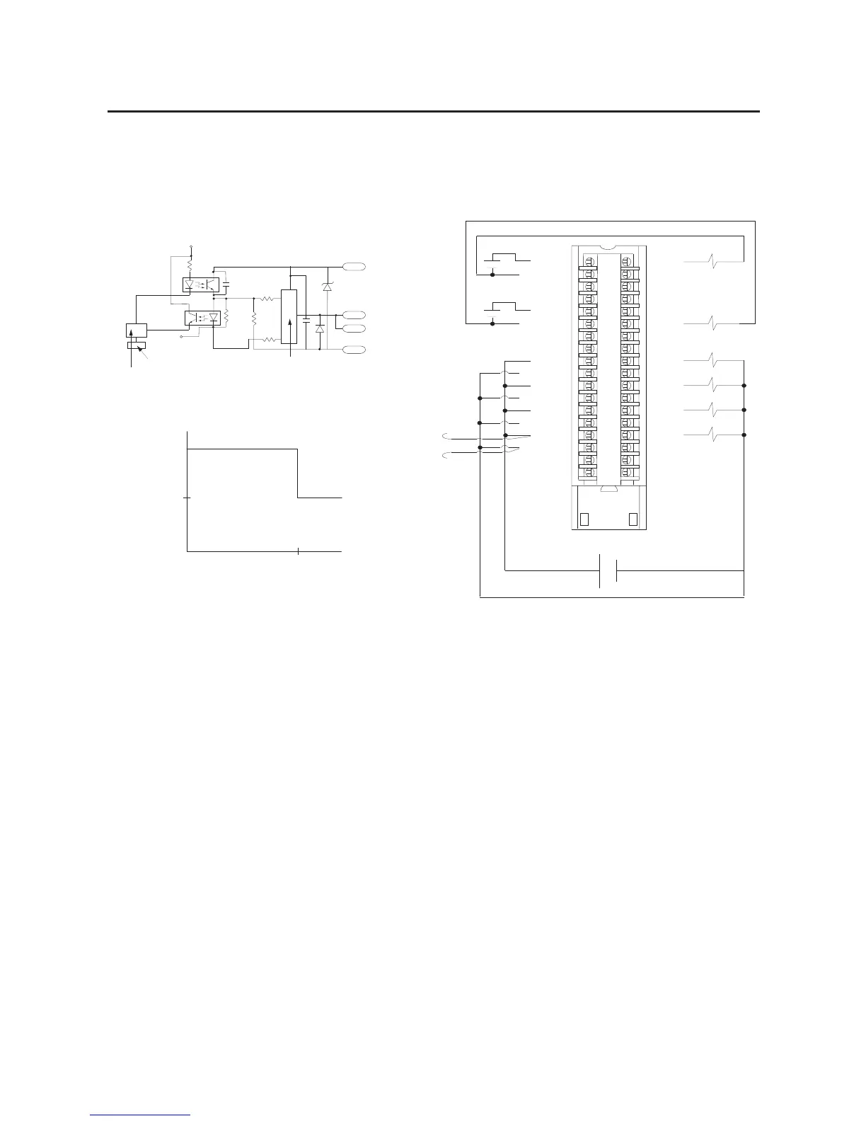
1756-OB8EI
ControlLogix DC (10...30V) electronically-fused, isolated output module
12
34
56
78
019
2111
4131
6151
8171
0291
2212
4232
6252
8272
0392
2313
4333
6353
+
+
-
-
+
DC-0 (+)
RTN OUT-0
DC-1 (+)
RTN OUT-1
DC-4 (+)
DC-2 (+)
RTN OUT-2
DC-3 (+)
RTN OUT-3
Not Used
RTN OUT-4
DC-5 (+)
RTN OUT-5
DC-6 (+)
RTN OUT-6
DC-7 (+)
RTN OUT-7
Not Used
OUT-0
OUT-0
OUT-1
OUT-1
OUT-4
OUT-2
OUT-2
OUT-3
OUT-3
Not Used
OUT-4
OUT-5
OUT-5
OUT-6
OUT-6
OUT-7
OUT-7
Not Used
DC COM
Isolated
Wiring
1756-OB8EI
Daisy Chain to
Other RTBs
Nonisolated
Wiring
Daisy Chain to
Other RTBs
Continuous @ 60 °C (140 °F)
ControlLogix Backplane Interface
Display
Output
Device
OUT-0
RTN
OUT-0
DC-0(+)
OUT-0
Surge Current Chart
Simplified Schematic
Surge
+5V
Current
Time
010 ms
2 A
4 A

Table of Contents

Other manuals for Allen-Bradley 1756-OB16E

Related product manuals