EasyManua.ls Logo

Allen-Bradley 1756-OB16E - 1756-Oh8 I

Allen-Bradley 1756-OB16E
258 pages
To Next Page IconTo Next Page
To Next Page IconTo Next Page
To Previous Page IconTo Previous Page
To Previous Page IconTo Previous Page
Loading...
170 Rockwell Automation Publication 1756-UM058G-EN-P - November 2012
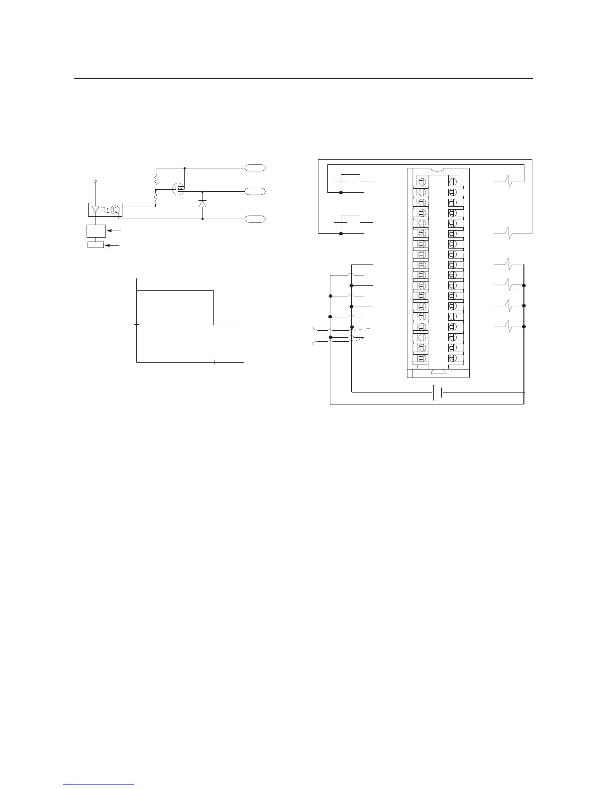
Chapter 8 Wiring Diagrams
1756-OH8I
ControlLogix DC (90...146V) isolated output module
12
34
56
78
910
1112
1314
1516
1718
1920
2122
2324
2526
2728
2930
3132
3334
3536
+
+
-
-
+
DC-0 (+)
RTN OUT-0
DC-1 (+)
RTN OUT-1
DC-4 (+)
DC-2 (+)
RTN OUT-2
DC-3 (+)
RTN OUT-3
Not used
RTN OUT-4
DC-5 (+)
RTN OUT-5
DC-6 (+)
RTN OUT-6
DC-7 (+)
RTN OUT-7
Not used
OUT-0
OUT-0
OUT-1
OUT-1
OUT-4
OUT-2
OUT-2
OUT-3
OUT-3
Not used
OUT-4
OUT-5
OUT-5
OUT-6
OUT-6
OUT-7
OUT-7
Not used
DC COM
Isolated Wiring
Daisy
chain to
other
RTBs
Non-Isolated
Wiring
1756-OH8I
Daisy
chain to
other
RTBs
ControlLogix Backplane Interface
RTN
OUT-0
DC-0
Display
Surge Current Chart
Simplified Schematic
Surge
+5V
Current
Time
0
10 ms
2 A
4 A
OUT-0
Continuous @ 60 °C (140 °F)

Table of Contents

Other manuals for Allen-Bradley 1756-OB16E

Related product manuals