EasyManua.ls Logo

Alpha ARES 150 Tec - Page 55

Alpha ARES 150 Tec
59 pages
Print Icon
To Next Page IconTo Next Page
To Next Page IconTo Next Page
To Previous Page IconTo Previous Page
To Previous Page IconTo Previous Page
Loading...
52
VI
VIOLA
0
1
2
3
4
5
6
7
8
9
4
5
6
. 2)
0
1
2
3
4
5
6
7
8
9
MOD. 4
(POS . 3)
0
1
2
3
4
5
6
7
8
9
MOD. 5
(POS . 4)
0
1
2
3
4
5
6
7
8
9
MOD. 6
(POS . 5)
0
1
2
3
4
5
6
7
8
9
MOD. 7
(POS . 6)
Al / To conn.
A4 power supply
A4 scheda alim. /
VG
mod.
1
YG
R
E. ACC . 1
2° - 7° Mod.
LB
RB
GY
BL
BR
LB
VM (A)
RB
R
RB
R
FILTE R
VM (A)
LB
RB
GY
LB
Intermediate and Last
Module
VM (A)
RB
GY
LB
BL
RB
YG
BR
BL
YG
BR
WH
VM
E. RIL. 2 - 7
(R)
BK
2-7
BL
BR
OR
FL
BK
BR
WH
SR
2-7
SL
TL
OR
2-7
OR
WH
WH
WH
BR
L BL
L BL
mod.
3° - 7°
mod.
2 - 7
YG
E. ACC . 2-7
R
BR
BL
YG
BL
BR
YG
G
KP
KP
G
4
2
T.ACC .
1
T.ACC .
2 - 7
MMB
VG
INGR. ANALOG. Analogue input
GND 0-10V ING 0-10 V analogue input
0-10V C.P.M. Modulating Pump Control
ALLARM SIGNAL Alarm Outlet
Comm. P. COLL Boiler manifold pump control
Comm. P. CH Central heating pump control
P. car DHW Storage tank load pump control
COM. Common
IG Main switch
TLG General limit thermostat
LTLG Limit thermostat lamp
F Fuse
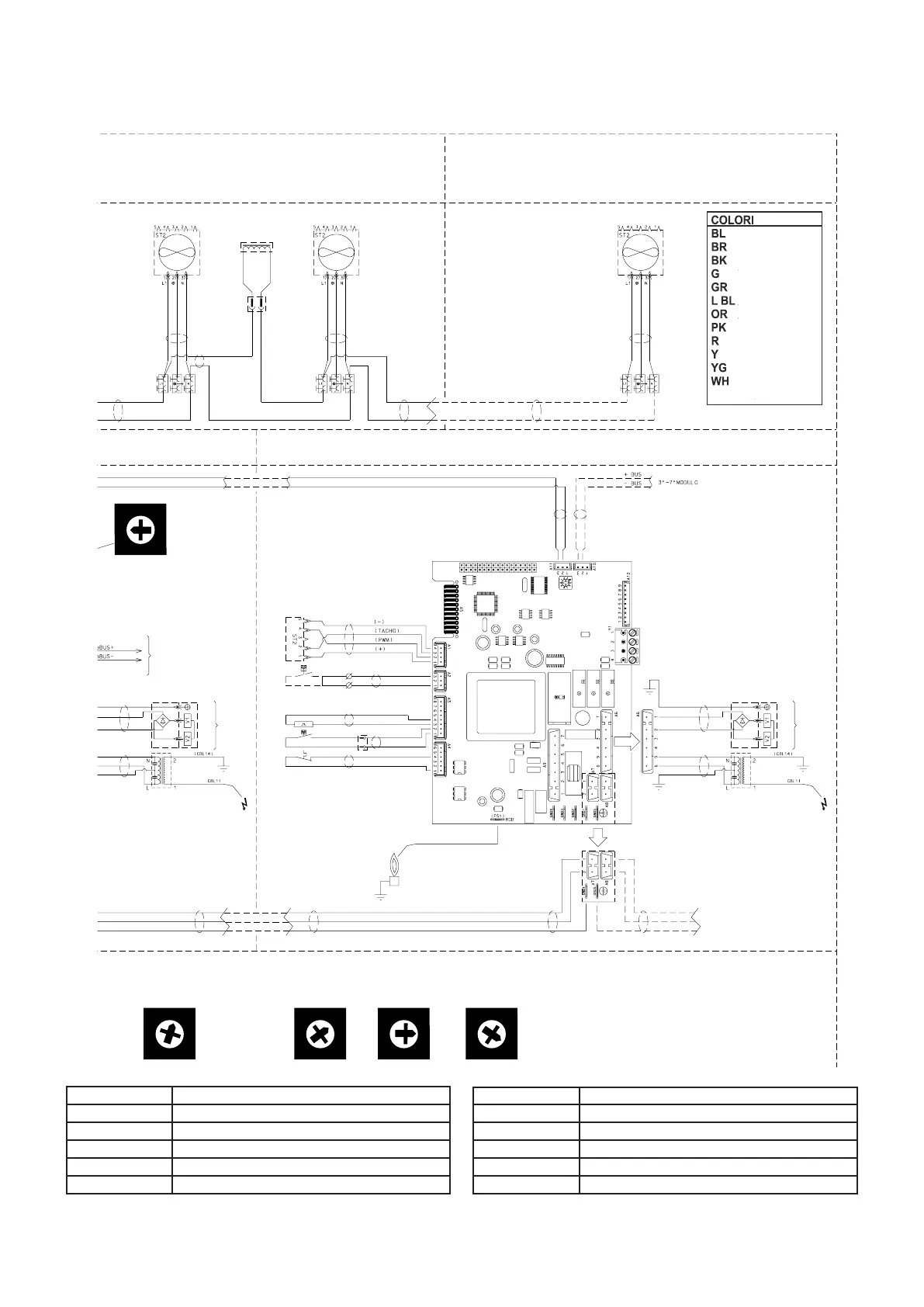
BLUE
BROWN
BLACK
GREEN
GREY
LIGHT BLUE
ORANGE
PINK
RED
YELLOW
YELLOW / GREEN
WHITE
PURPLE

Related product manuals