EasyManua.ls Logo

Alpine ASC-42 - ASC Direct Vent System (Flex) Horizontal Terminations Only

Alpine ASC-42
25 pages
Print Icon
To Next Page IconTo Next Page
To Next Page IconTo Next Page
To Previous Page IconTo Previous Page
To Previous Page IconTo Previous Page
Loading...
9
Alpine Supply Company 42 Direct Vent Gas Fireplace
ASC Direct Vent System ( Flex ) Horizontal Terminations Only
The venting systems, in combination with the ASC Direct Vent Gas Fireplace, have been tested and listed
as direct vent heater system by ITS. The location of the termination cap must conform to the requirements in
the Vent Terminal Locations diagram on page # 8.
1) 7” dia. flexible liner ( 4 ft. length )
2) 4” dia. Flexible liner ( 4ft. Length )
3) Spring spacers (4)
4) Firestop (1)
5) Termination cap (1)
6) Screws (12)
7) Tube of Mill Pac (1)
8) 4” clamps (2)
9) Flexible vent adapter (1)
Notes:
1) Liner sections should be continuous without any seams.
2) Only Flex Kits purchased from Alpine Gas Fireplace may be used for Flex installations.
VENTING REQUIREMENTS
If longer runs are needed the ASC Direct Vent System
(flex) # 09021 includes all the parts needed to install the
ASC with a maximum 8’ run.
1) 8’ dia. Flexible liner (8 ft. length)
2) 4” dia flexible liner (8 ft. length)
3) Spring spacers (6)
4) Firestop (1)
5) Termination cap (1)
6) Screws (12)
7) Tube of Mill Pac (1)
8) 4” clamps (2)
9) Flexible vent adapter
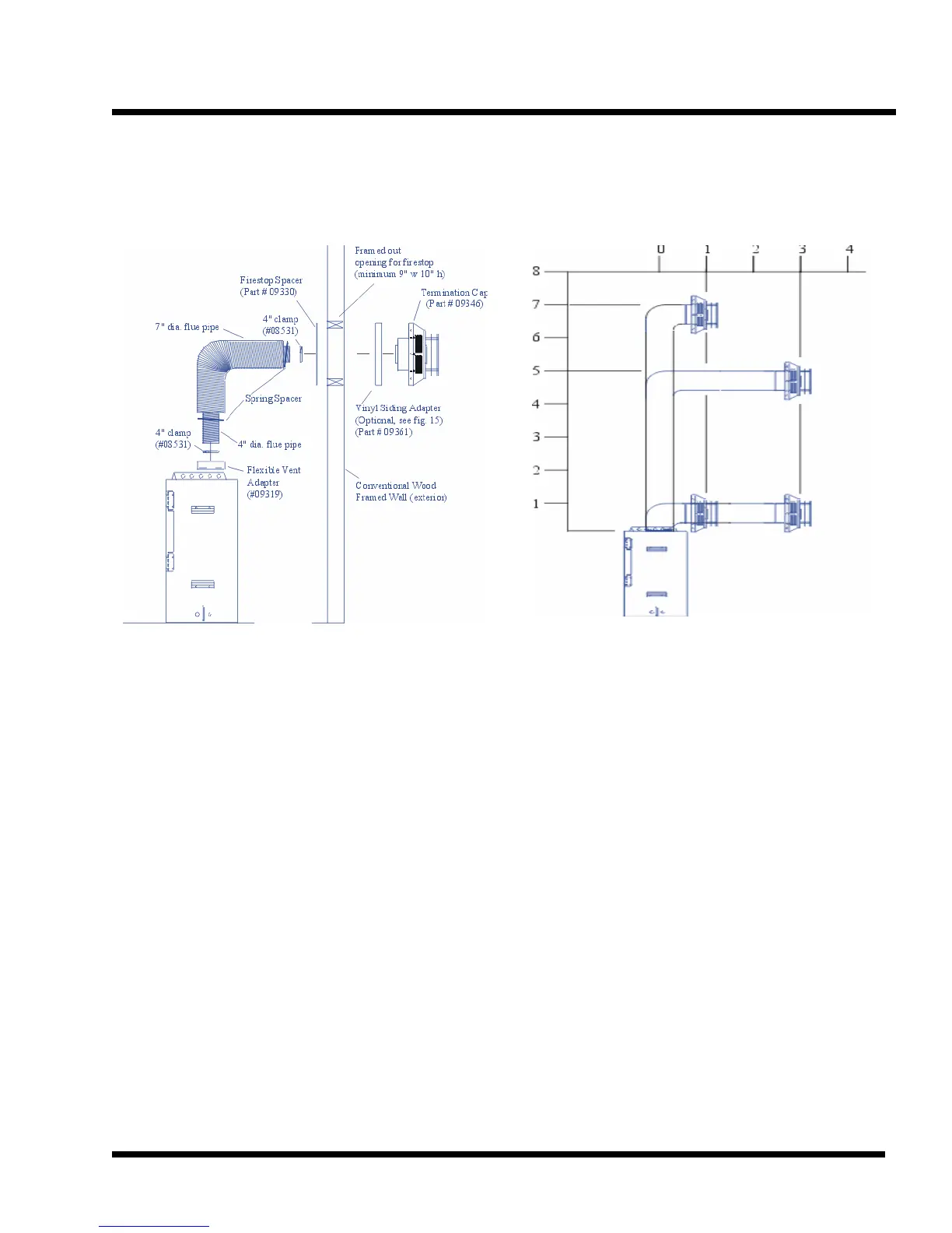
This diagram shows all allowable maximum combinations of
horizontal runs for flexible vent systems. A maximum of 3'
horizontal run with a maximum vent length of 8' is the limita-
tion. The maximum rise is 7' vertical with a 1'
horizontal run.
ASC. Direct Vent ( Flex ) System Termination Kit
( Part # 09019 ) includes all the parts needed to install
the ASC with A maximum run of 4 feet.

Related product manuals