EasyManua.ls Logo

Altivar Process ATV680 - Page 30

Default Icon
39 pages
Print Icon
To Next Page IconTo Next Page
To Next Page IconTo Next Page
To Previous Page IconTo Previous Page
To Previous Page IconTo Previous Page
Loading...
30 EAV64334 06/2017
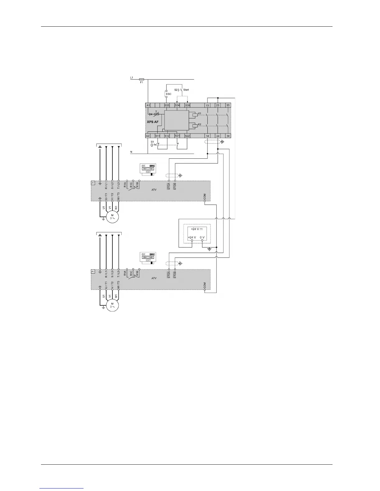
Multidrive with Safety Module Type Preventa XPS-AF Connection Diagram
This connection diagram applies for a multidrive configuration with the safety module type Preventa XPS-
AF according to ISO 13849-1 category 3 PLe, IEC 62061 and 60204-1 stop category 0.
NOTE: The +24VDC power supply must meet the requirements of IEC 61131-2 (PELV standard power
supply unit).

Related product manuals