EasyManua.ls Logo

Altivar Process ATV680 - Process System SF - Case 3

Default Icon
39 pages
Print Icon
To Next Page IconTo Next Page
To Next Page IconTo Next Page
To Previous Page IconTo Previous Page
To Previous Page IconTo Previous Page
Loading...
EAV64334 06/2017 31
Process System SF - Case 3
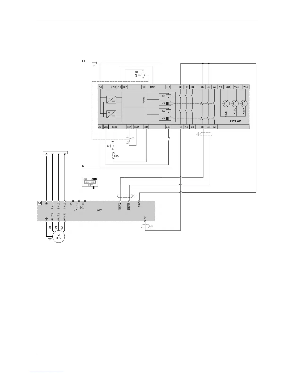
Connection Diagram For Single Drive with Safety Module Type Preventa XPS-AV
This Connection diagram applies for a single drive configuration with the Safety Module Type Preventa
XPS AV According to ISO 13849-1 category 3 PLe and IEC 60204-1 stop category 1.
NOTE: This diagram is a wiring configuration using DI1 assigned to forward operation.

Related product manuals