EasyManua.ls Logo

Ametek Thermox Series 2000 WDG-IV

Ametek Thermox Series 2000 WDG-IV
193 pages
To Next Page IconTo Next Page
To Next Page IconTo Next Page
To Previous Page IconTo Previous Page
To Previous Page IconTo Previous Page
Loading...
Installation | 3-9
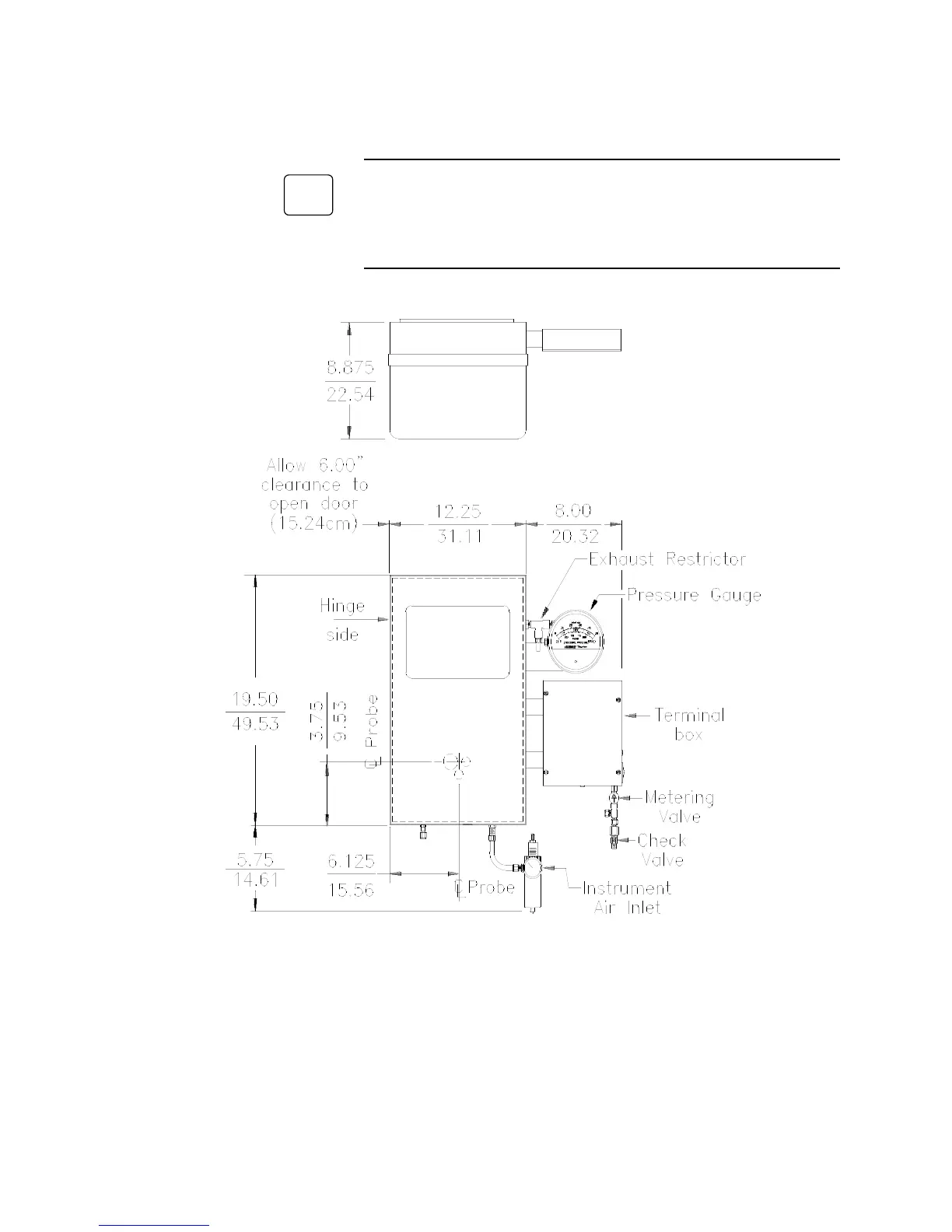
Mounting dimensions for the lift-off style sensor enclosure are provided
in Figure 3-4. Mounting dimensions for the hinged style enclosure, includ-
ing the Z-purge option, are provided in Figure 3-5.
If the protection nipple provided by AMETEK/Thermox extends past
the inside of the refractory wall on a process that has a gas tempera-
ture over 1200 °F (650 °C), the nipple should be cut down before
installation in order to remain flush with the inside wall.
Figure 3-5. Mounting dimensions - Hinged sensor.
NOTE

Table of Contents

Related product manuals