EasyManua.ls Logo

Ampro CoreModule 420 - Removing the CompactFlash Card

Default Icon
72 pages
Print Icon
To Next Page IconTo Next Page
To Next Page IconTo Next Page
To Previous Page IconTo Previous Page
To Previous Page IconTo Previous Page
Loading...
Chapter 2 Product Overview
14 Reference Manual CoreModule 420
Specifications
Physical Specifications
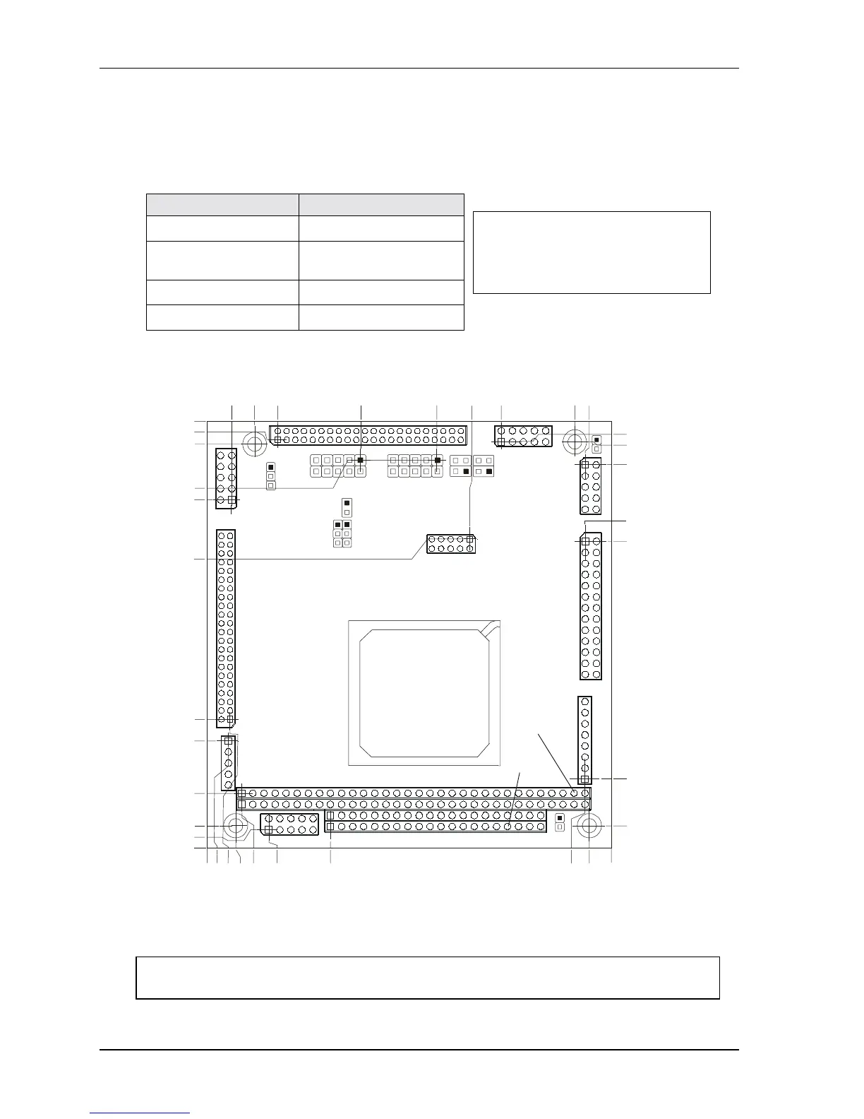
Table 2-5 gives the physical dimensions of the module and Figure 2-7 gives the mounting dimensions.
Table 2-5. Weight and Footprint Dimensions
Item Dimension
Weight
92.5g. (0.204lbs.)
Height (upper surface)
10.99 mm (0.43 inches)
See also Note on page 15.
Width
90.2 mm (3.6 inches)
Length
95.9 mm (3.8 inches )
NOTE Height is measured from the
upper surface of the board
to the highest permanent
component on the upper
surface of the board.
Mechanical Specifications
J9
J6
J11
J10
J7
J2
J4
J3
J5
P1B
P1A
P1C
P1D
JP2
J8
JP7
JP8
JP9
JP6
J13
J14
JP4JP5
9
10
10
4
3
1
2
1
2
JP1
0.000
0.000
0.300
-0.200
0.700
0.940
2.890
3.375
3.575
3.431
0.150
0.400
2.375
3.050
2.500
0.394
0.850
3.190
3.105
3.375
3.400
3.350
0.280
-0.030
-0.020
0.050
0.000
0.000
-0.010
-0.200
3.112
3.150
3.100
1.160
2.100
1.800
2.580
3.281
CPU
U14
CM420RFM_01d
Figure 2-7. Mechanical Dimensions (Top View)
NOTE All dimensions are given in inches. Pin 1 is shown as a black square or black
round pin in connectors and jumpers in all illustrations.

Table of Contents

Other manuals for Ampro CoreModule 420