EasyManua.ls Logo

Amtech Axpert-Eazy AMT-110-4 - Insulation Test

Default Icon
242 pages
Print Icon
To Next Page IconTo Next Page
To Next Page IconTo Next Page
To Previous Page IconTo Previous Page
To Previous Page IconTo Previous Page
Loading...
Axpert-Eazy AC Variable Frequency Drive
13.5
13
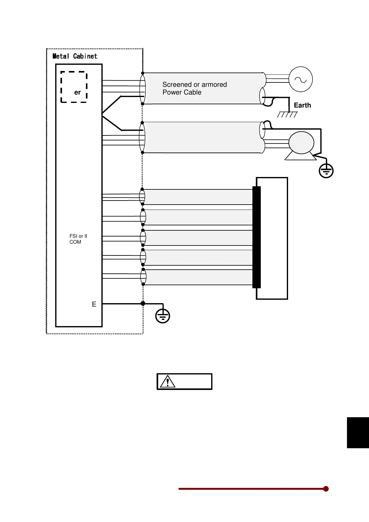
Fig. 13-3
13-6 Insulation test
CAUTION
If an insulation test is performed on a system incorporating Eazy drive and filters, remove the
input filters from the system during the test. (For precautions for drive, see Chapter 2.)
Perform the test at the maximum voltage of 1500 VAC.
Screened cable
Screened cable
Screened cable
Screened cable
L1
L2
L3
E
AC Supply
Inverter
U
V
W
Screened or armored
motor cable
E
Motor
Screened cable
RUN
RY0
FA/FC
FSV or VIN
COM
Metal box
Metal Cabi
Metal CabiMetal Cabi
Metal Cabinet
netnet
net
Earth
Screened or armored
Power Cable
E
FSI or IIN
COM
VO1 or VO2
COM
IO1 or IO2
COM
EMI
filter

Table of Contents

Related product manuals