EasyManua.ls Logo

Ancona gc430 - Venting Methods

Ancona gc430
21 pages
Print Icon
To Next Page IconTo Next Page
To Next Page IconTo Next Page
To Previous Page IconTo Previous Page
To Previous Page IconTo Previous Page
Loading...
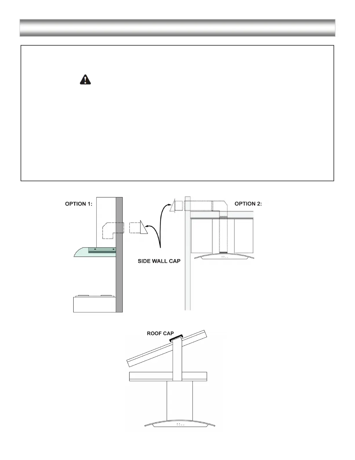
This range hood is factory set for venting through the roof or wall.
Vent work can terminate either through the roof or wall. To vent through a wall, a 90° elbow is needed.
IMPORTANT:
NEVER exhaust air or terminate duct work into spaces between walls, crawl spaces, ceiling,
attics or garages. All exhaust must be ducted to the outside.
WARNING - TO REDUCE RISK OF FIRE, USE METAL/ALUMINUM DUCT WORK ONLY
Fasten all connections with sheet metal screws and tape all joints with certified aluminum or foil tape.
Please check the building codes in your city to learn which tape product is recommended
Use caulking to seal exterior wall or roof opening around the cap.
VENTING METHODS:
HORIZONTAL VENTING WALL EXHAUST
TOP VENTING ROOF EXHAUST
7

Related product manuals