EasyManua.ls Logo

andrews MAXXflo - Wiring Diagram

andrews MAXXflo
44 pages
Print Icon
To Next Page IconTo Next Page
To Next Page IconTo Next Page
To Previous Page IconTo Previous Page
To Previous Page IconTo Previous Page
Loading...
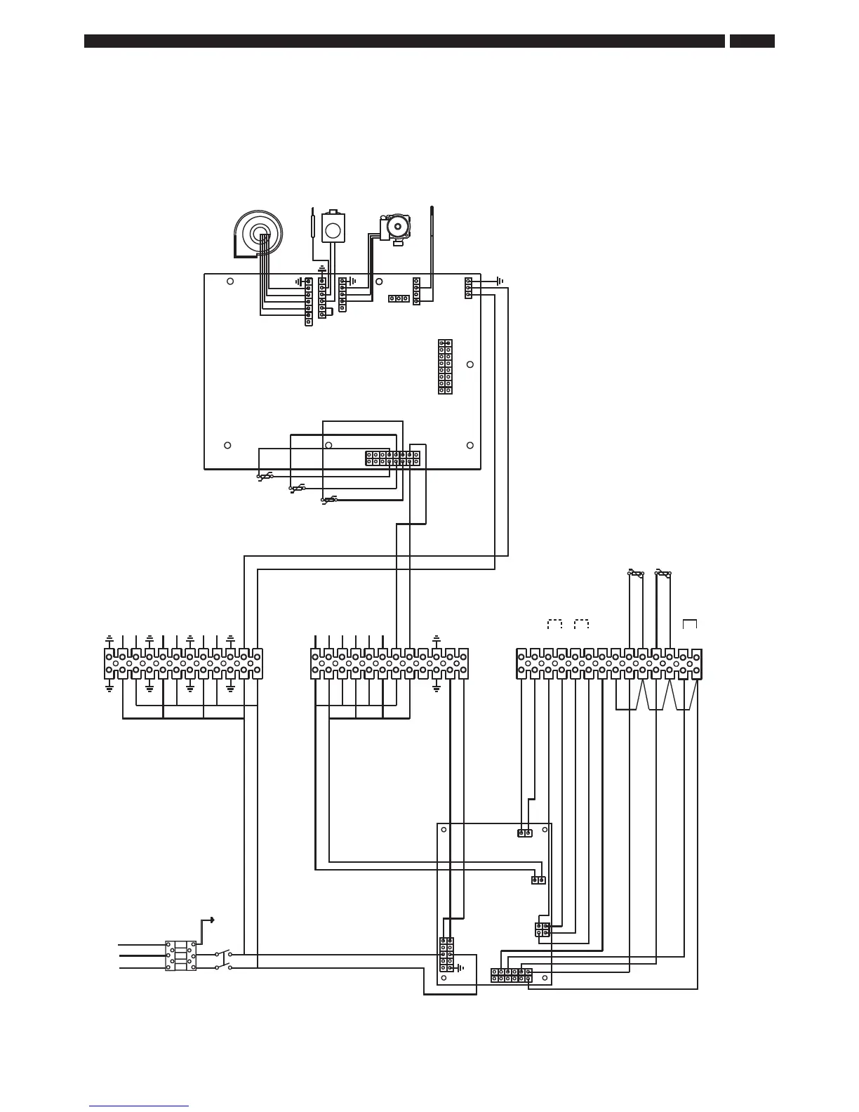
MAXXo Water Heater
1717
INSTALLATION SECTION 3
master
230V/50Hz
br wh
br
br
br
wh
wh
gr
gr
gr
gr
r
r
r
r
wh
comm. 2
comm. 3
comm. 4
comm. 1
y
gy
r
br
bl
br bl
r r
bl
wh
bk
bl
br
bl
y
or
y
br
gy
br
bl
br gy
br
bl
gy
bk
y
AL1
AL2
TS1
TS2
TS3
TS4
br
bl
br
bl
br
br
br
bl
bl
bl
br
br
br
bl
bl
bl
gy
gn
bk
or
y
r
y
bk
r
bk
gr
or
AL1-AL2 = Alarm
BT1-BT2 = Activate Second Setpoint
TH1-TH2 = Activate Secondary Pump
LS1-LS2 = Secondary Sensor
TS1-TS2 = Tank sensor, low position
EN1-EN2 = enable / disable
bl = blue
br = brown
y = yellow
gn = green
gy = grey
or = orange
br
bl
BT1
BT2
LS1
LS2
TH1
TH2
L N
br
bl
br bl
br
r = red
wh = white
bk = black
pi = pink
bl
bk
pi
or
flow sensor 2
flow sensor 1
return sensor
slave 1
fan
ionisation rod
gasvalve
primary
pump
glow plug
tank sensor, low position
mains 1
mains 2
mains 3
mains 4
pump
pump L
secondary
pump
pump N
M5879D
wh
(Max 24 V 1.0 Amp)
E
g/y
g/y = green & yellow
EN1
EN2
tank sensor, high position
TS3-TS4 = Tank sensor, high position
r/bl
bk
gy
r/bl
r
bk
}
gn
Fig. 7 – Wiring Diagram
Make sure that the phase (L) and the neutral (N) are connected to the correct terminals on the connector. e appliance is
phase sensitive therefore swapping the phase and neutral will lead to a fault in the appliance.

Table of Contents

Related product manuals