EasyManua.ls Logo

andrews MAXXflo - Temporary Water Heater Temperature Change; Circulation Pump and Storage Tanks

andrews MAXXflo
44 pages
Print Icon
To Next Page IconTo Next Page
To Next Page IconTo Next Page
To Previous Page IconTo Previous Page
To Previous Page IconTo Previous Page
Loading...
MAXXo Water Heater
1818
TEMPORARY WATER HEATER TEMPERATURE
CHANGE
It is possible to change the water heater temperature
remotely via a timer programme. First of all, the new
desired water heater temperature is set at a value higher
or lower than the water heater temperature during normal
operation. is makes it possible, for example, to carry out
Legionella ushing. (See page 32).
e water heater temperature changes when the contacts
connected to terminals BT1 – BT2 are closed. e water
heater temperature goes back to normal operation when
these contacts are opened again.
If the temperature change is used for Legionella ushing,
it is possible to return the water heater temperature to
normal operation before the timer programme nishes.
is happens on the basis of a temperature measurement,
for example at the end of a circulation line (secondary
return). For this purpose, a 10K NTC temperature sensor
(part number E674) must be connected to the terminals
LS1 – LS2. e water heater temperature now goes back
to normal operation if the temperature is higher at the
measuring point than the secondary pre-set water heater
temperature minus 5°C for 20 minutes.
If, for example, the secondary pre-set water heater
temperature is set at 70°C, the water heater temperature
returns back to normal operation as soon as the
temperature at the secondary measuring point has been
above 65°C for more than 20 minutes.
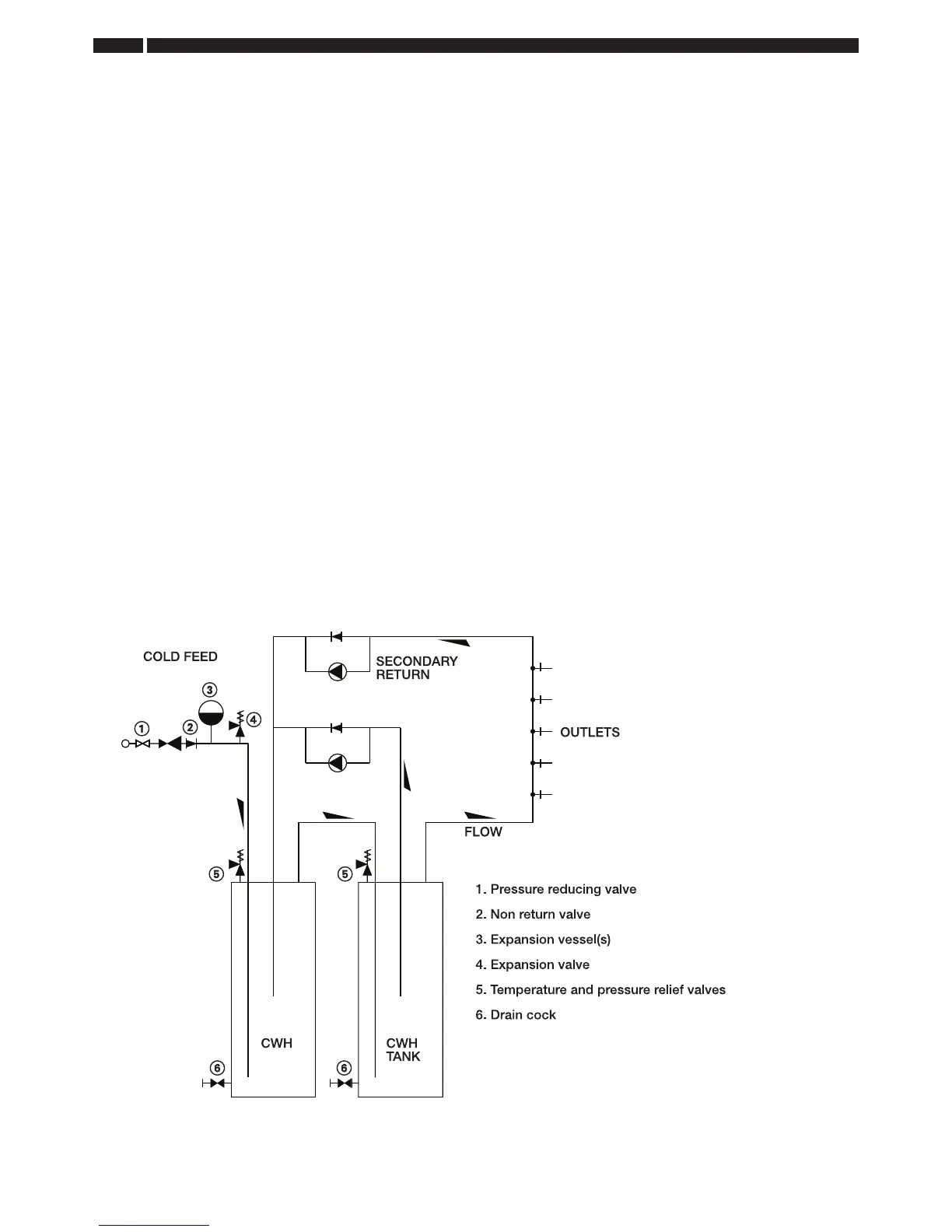
CIRCULATION PUMP AND STORAGE TANKS
A circulation pump (maximum 0.7 A) can be connected at
the terminal pump L – pump N. e circulation pump can
then be controlled by a thermostat connected to terminals
TH1-TH2. Connecting the contacts of the thermostat then
activates the circulation pump.
e application can be used when the water heater is
combined with a separate storage tank.
As soon as the temperature in the tank gets too low, the
thermostat will activate the pump so the tank is heated
up again. Matching MAXXo storage tanks are available in
200 and 300 litre sizes, models HWST200 and HWST300.
ese tanks are tted with a thermostat for use as above.
See below for schematic system design and pages 16 & 18
for tank dimensions and wiring diagram.
FIG 8 – SCHEMATIC SYSTEM DESIGN
SECTION 3 INSTALLATION

Table of Contents

Related product manuals