EasyManua.ls Logo

andrews MAXXflo - Page 9

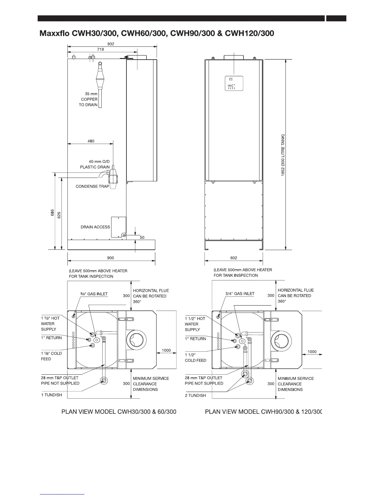
andrews MAXXflo
44 pages
Print Icon
To Next Page IconTo Next Page
To Next Page IconTo Next Page
To Previous Page IconTo Previous Page
To Previous Page IconTo Previous Page
Loading...
MAXXo Water Heater
99
TECHNICAL DETAILS SECTION 2
INSPECTION HATCH
INSPECTION HATCH

Table of Contents

Related product manuals