EasyManua.ls Logo

Aprimatic T3 - 1 Beschreibung; Blockschaltbild der Steuerung

Aprimatic T3
Print Icon
To Next Page IconTo Next Page
To Next Page IconTo Next Page
To Previous Page IconTo Previous Page
To Previous Page IconTo Previous Page
Loading...
1. BESCHREIBUNG
Die Aprimatic-Steuerung mit Mikroprozessor zur Steuerung von 2 Motoren bis zu einer
Leistung von jeweils max. 250 Watt ausgerüstet. Stromaufnahme in Standby 15 W.
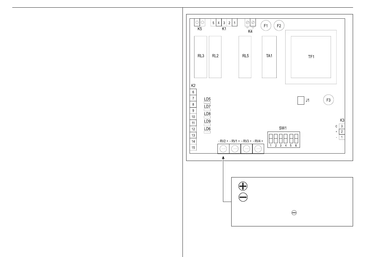
1.1 BLOCKSCHALTBILD DER STEUERUNG
RV1 Trimmpotentiometer: Einstellung der Annäherungsgeschwindigkeit
RV2 Trimmpotentiometer: Einstellung der Umsteuerungsempfindlichkeit
RV3 Trimmpotentiometer: Einstellung der Pausenzeit
RV4 Trimmpotentiometer: Einstellung der Betriebszeit
F1 5A-Sicherung: Motor
F2 200mA-Sicherung: Netzsicherung
F3 500 mA-Sicherung: 24V-Ausgang für Zubehör
SW1 DIP-SWITCH
K1 Klemmleiste für Motor + Netzspannung (IN)
K2 Klemmleiste für Signale/Steuerbefehle
K3 Klemme zum Anschluß von Zubehör (ausschließlich von Aprimatic)
K4 Klemmleiste zum Anschluß der Erdleiter
K5 Stecker zum Anschluß der Hilfsbeleuchtung
RL3 Relais: Hilfsbeleuchtung
RL5 Relais: Motor
RL2 Relais: Laufrichtung
L5 LED: Start
L6 LED: Sicherheitseinrichtung Öffnen/Schließen
L7 LED: Stop
L8 LED: Lichtschranke
L9 LED: Endschalter
TF1 Transformator
J1 Bremsungsart
2. MONTAGE
ACHTUNG - Die Montage des Produkts darf nur von technischem Fachpersonal des
Kunden- bzw. Montagedienstes vorgenommen werden.
ACHTUNG - Die Elektroanlage muß den einschlägigen Vorschriften des jeweiligen
Landes entsprechen.
ACHTUNG - Vor dem Öffnen des Gehäuses stets die Netzversorgung unterbrechen.
Sicherstellen, daß eine ausreichende Erdung vorhanden ist. Den Erdleiter
stets auf die entsprechenden Klemmen legen.
T3.EPS
= mehr Empfindlichkeit = weniger Schubkraft
= weniger Empfindlichkeit = mehr Schubkraft
Hinweis: Bei Kombination von T3 mit Hydraulikantrieb RV2
auf Anschlag auf stellen.
S6 auf ON stellen.

Table of Contents

Related product manuals