EasyManua.ls Logo

Aprimatic T3 - 1 Descrizione; Schema a Blocchi Dellapparecchiatura

Aprimatic T3
Print Icon
To Next Page IconTo Next Page
To Next Page IconTo Next Page
To Previous Page IconTo Previous Page
To Previous Page IconTo Previous Page
Loading...
1. DESCRIZIONE
Apparecchiatura dotata di microprocessore Aprimatic per l’azionamento di 2 motori fino
a 250 Watt di potenza massima ciascuno. Assorbimento in stand-by 15 W.
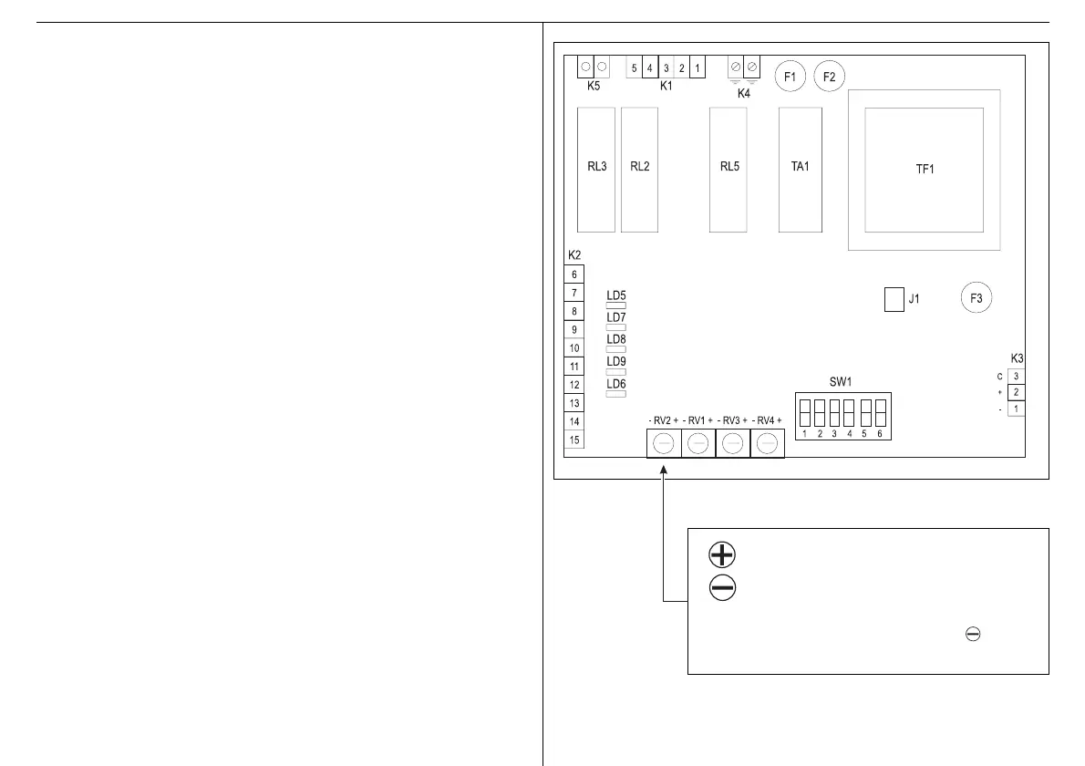
1.1 SCHEMA A BLOCCHI DELL’APPARECCHIATURA
RV1 Trimmer velocità di accostamento
RV2 Trimmer sensibilità di inversione
RV3 Trimmer tempo di pausa
RV4 Trimmer tempo di lavoro
F1 Fusibile 5A motore
F2 Fusibile 200mA protezione sulla rete
F3 Fusibile 500 mA uscita 24V accessori
SW1 DIP-SWITCH
K1 Morsettiera motore + tensione di rete (IN)
K2 Morsettiera segnali/comandi
K3 Morsetto per innesto di accessori esclusivamente Aprimatic
K4 Morsettiera per collegamento di terra
K5 Connettore per collegamento luce di cortesia
RL3 Relè luce di cortesia
RL5 Relè motore
RL2 Relè senso di marcia
L5 Led Start
L6 Led Sicurezza in apertura/chiude
L7 Led Stop
L8 Led Fotocellula
L9 Led Finecorsa
TF1 Trasformatore
J1 Tipologia di rallentatamento
2. INSTALLAZIONE
ATTENZIONE - L’installazione del prodotto può essere effettuata soltanto da personale
tecnico qualificato del servizio di assistenza e/o montaggio.
ATTENZIONE - L’impianto elettrico dovrà essere realizzato in conformità con le
normative in vigore nel paese di installazione.
ATTENZIONE - Togliere sempre tensione prima di aprire il contenitore. Assicurarsi di
avere a disposizione un buon impianto di messa a terra e collegare
sempre la stessa ai relativi morsetti.
T3.EPS
= più sensibilità = meno forza di spinta
= meno sensibilità = più forza di spinta
N.B. Nel caso di abbinamento T3 con attuatore idraulico,
posizionare RV2 a fondo corsa verso il .
Posizionare S6 su ON.

Table of Contents

Related product manuals