EasyManua.ls Logo

Aprimatic T3 - 1 Descripción; Esquema de Bloques del Equipo

Aprimatic T3
Print Icon
To Next Page IconTo Next Page
To Next Page IconTo Next Page
To Previous Page IconTo Previous Page
To Previous Page IconTo Previous Page
Loading...
1. DESCRIPCIÓN
Equipo provisto de microprocesador Aprimatic para el accionamiento de 2 motores de
hasta 250 Watt de potencia máxima cada uno. Absorción en stand bz 15 W.
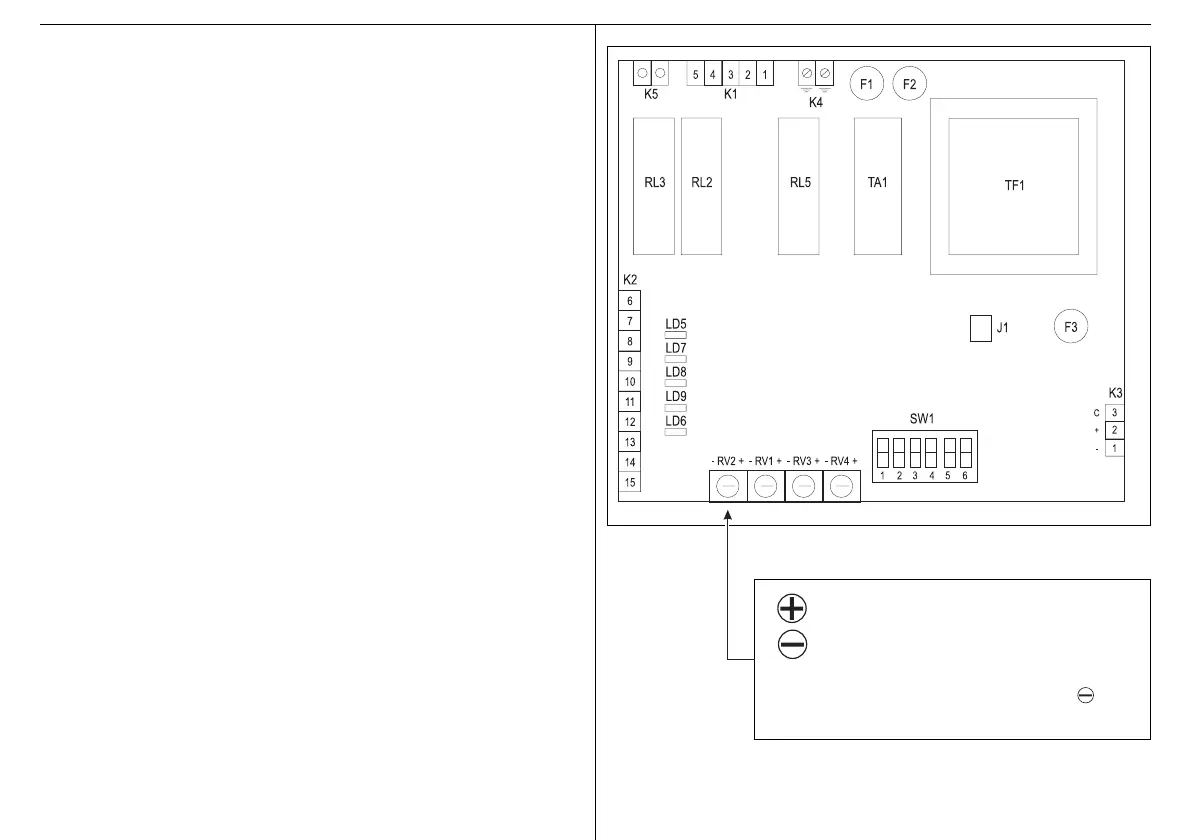
1.1 ESQUEMA DE BLOQUES DEL EQUIPO
RV1 Trimmer velocidad de aproximación
RV2 Trimmer sensibilidad de inversión
RV3 Trimmer tiempo de pausa
RV4 Trimmer tiempo de trabajo
F1 Fusible 5A motor
F2 Fusible 200mA protección en la red
F3 Fusible 500 mA salida 24V accesorios
SW1 DIP-SWITCH
K1 Regleta de conexiones motor + tensión de red (IN)
K2 Regleta de conexiones señales/mandos
K3 Borne para conexión accesorios exclusivamente Aprimatic
K4 Borne para conexión de tierra
K5 Conector para conexión luz de cortesía
RL3 Relé luz de cortesía
RL5 Relé motor
RL2 Relé dirección de marcha
L5 Led Start
L6 Led seg. apertura/cierre
L7 Led Stop
L8 Led fotocélula
L9 Led final de carrera
TF1 Transformador
J1 Tipología de deceleración
2. INSTALACIÓN
ATENCIÓN - La instalación del producto queda reservada al personal técnico calificado
del servicio de asistencia y/o montaje.
ATENCIÓN - La instalación eléctrica tendrá que estar realizada en conformidad con
las normativas vigentes en el país de uso.
ATENCIÓN - Cortar siempre la tensión antes de abrir el contenedor. Asegurarse de
disponer de una buena instalación de puesta a tierra y conectar siempre
esta última a los bornes relativos.
T3.EPS
= más sensibilidad = menos fuerza de empuje
= menos sensibilidad = más fuerza de empuje
NOTA Si se combina el T3 con un actuador hidráulico,
colocar RV2 al final de la carrera hacia .
Colocar S6 en ON.

Table of Contents

Related product manuals