EasyManua.ls Logo

ARCA PIXEL 25 N - Electrical Scheme of PIXEL 25 NR

ARCA PIXEL 25 N
32 pages
Print Icon
To Next Page IconTo Next Page
To Next Page IconTo Next Page
To Previous Page IconTo Previous Page
To Previous Page IconTo Previous Page
Loading...
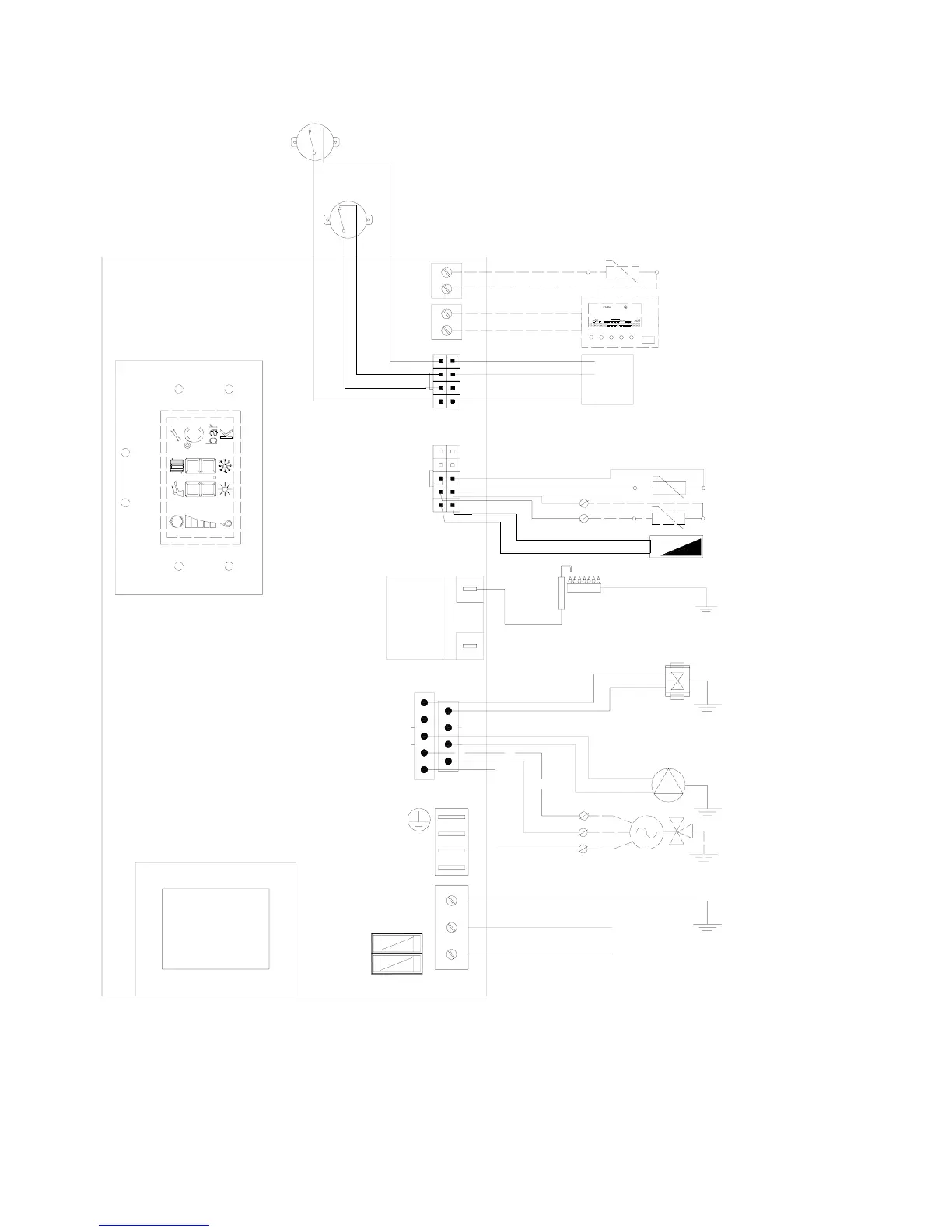
1.7 ELECTRICAL SCHEME of PIXEL 25 NR
10
SAN.
RISC.
3 WAYS VALVE
(OPZIONALE)
EXTERNAL SENSOR
(OPTIONAL)
ELECTRODE OF LIGHTING
AND SURVEY
GAS VALVE MODULATOR
FLUE GAS
THERMOSTAT
SUPPLY WATER
SAFETY BLOCK
AMBIENT
THERMOSTAT /
REMOTE CONTROL
(OPTIONAL)
PRESSURE
TRANSDUCTOR OF
HEATING SYSTEM
P2
P3
P1
ROSSO
ROSSO
SUPPLY SENSOR
DHW SENSOR
(OPTIONAL)
L
N
GAS VALVE
BLU
MARRONE
PUMP
FUSE:
2 x 3,15 AF 5x20 - 250 V
GROUND
NEUTRAL
PHASE

Table of Contents

Related product manuals