EasyManua.ls Logo

Argo AWS36PH - Page 96

Argo AWS36PH
134 pages
Print Icon
To Next Page IconTo Next Page
To Next Page IconTo Next Page
To Previous Page IconTo Previous Page
To Previous Page IconTo Previous Page
Loading...
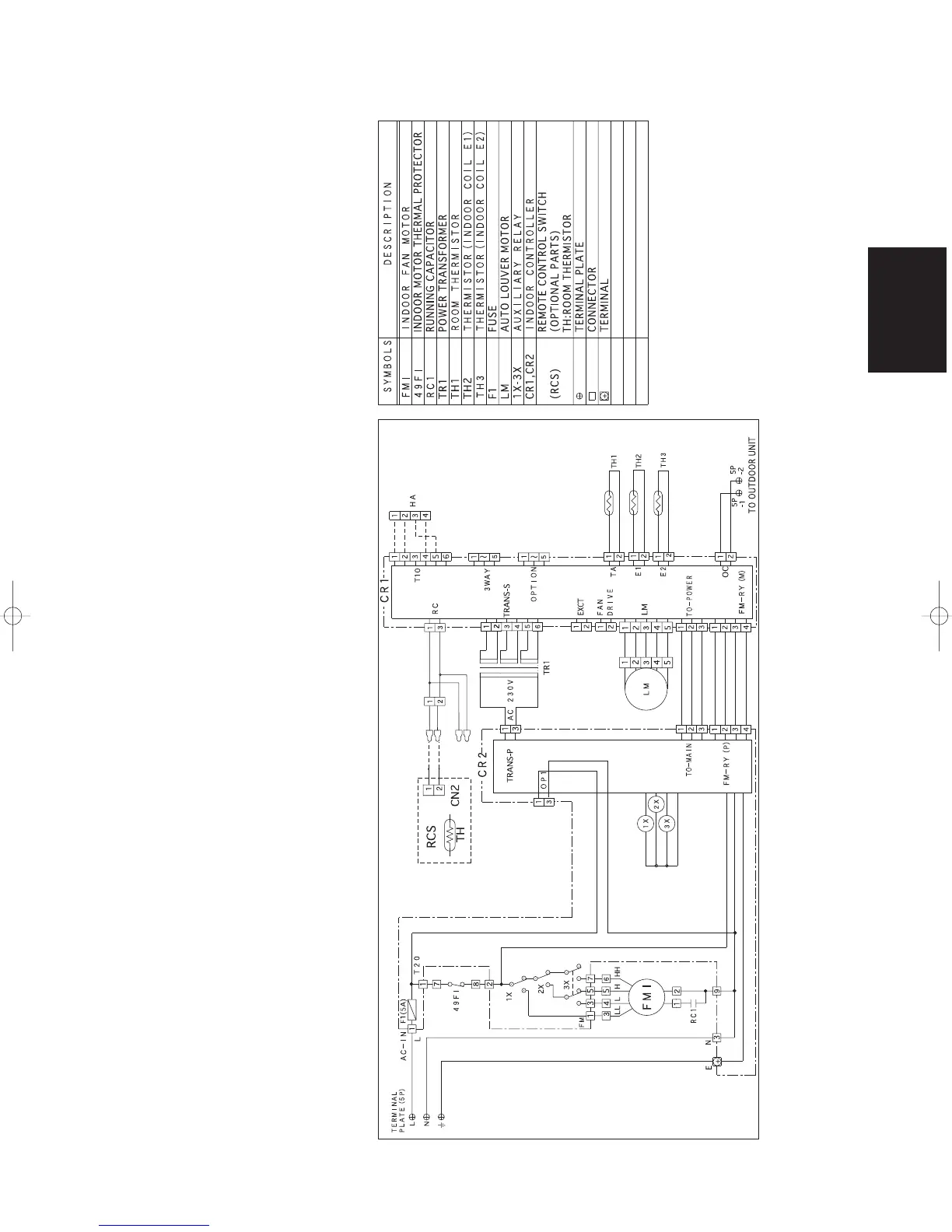
3
3 - 3
3-1. Indoor Units
Wall-Mounted Type AWS36PH
Schematic Diagram
04-163 Sanyo-3 7/9/04 8:25 PM Page 5

Related product manuals