EasyManua.ls Logo

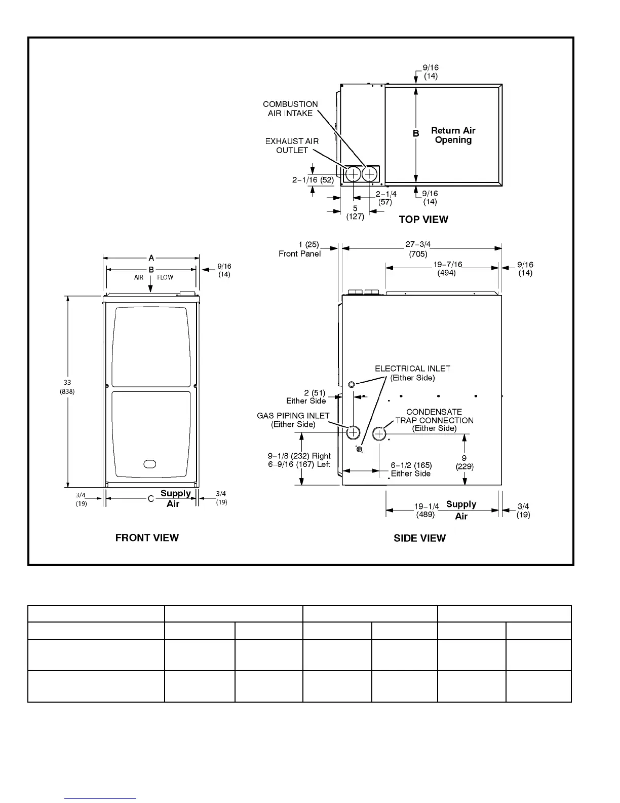
Armstrong Air Conditioning A96DS2V - Unit Dimensions

Armstrong Air Conditioning A96DS2V
72 pages
Print Icon
To Next Page IconTo Next Page
To Next Page IconTo Next Page
To Previous Page IconTo Previous Page
To Previous Page IconTo Previous Page
Loading...
507405-05Page 2 of 72 Issue 1621
Unit Dimensions - inches (mm)
Model Number A B C
A96DF2V in. mm in. mm in. mm
045-12
070-16
17-1/2 446 16-3/8 416 16 406
090-20
110-20
21 533 19-7/8 504 19-1/2 495