EasyManua.ls Logo

Assa Abloy 7220 - Page 3

Assa Abloy 7220
12 pages
Print Icon
To Next Page IconTo Next Page
To Next Page IconTo Next Page
To Previous Page IconTo Previous Page
To Previous Page IconTo Previous Page
Loading...
Concealed Vertical Rod Exit Device
7220
Installation Instructions
3
80-9472-0020-000 10/23
1-800-438-1951 • www.assaabloy.com
Copyright © 1999, 2013, 2023, ASSA ABLOY Access and Egress Hardware Group, Inc. All rights reserved. Reproduction in whole
or in part without the express written permission of ASSA ABLOY Access and Egress Hardware Group, Inc. is prohibited.
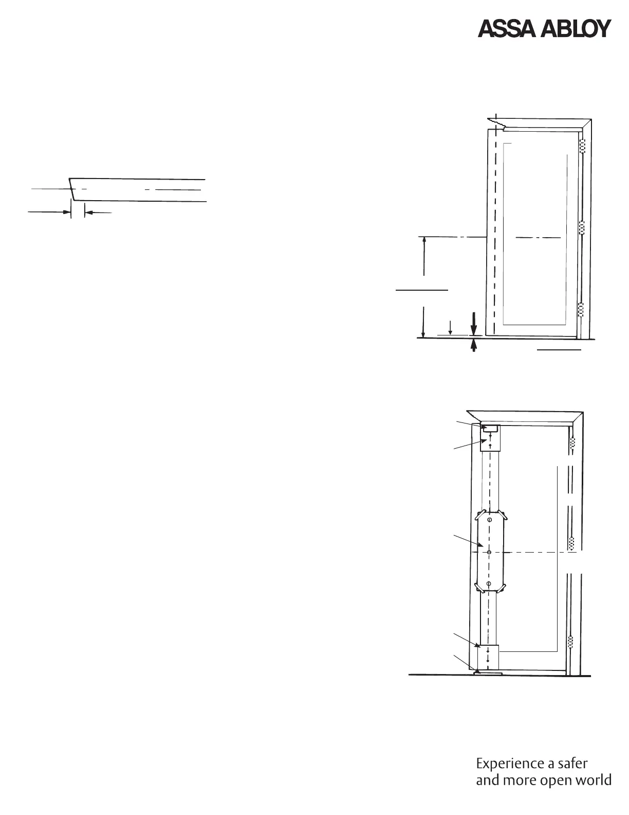
1. Mark Door
Single Door or Pair without Mullion
Locate and Mark Horizontal Reference and Rod and Strike Centerlines as
shown. LHR door shown, preparation is typical for both door hands.
2. Prepare Door, Frame, and Sill
A. Locate the Device Template aligning RODS and STRIKES CENTERLINE and
HORIZONTAL REFERENCE CENTERLINE on the door and template. Tape
the template to the door face.
B. Extend the centerline of Rod and Strikes from the Device Template to door
top and bottom, on the door face.
C. Locate Top Latch/Strike, Bottom Case and Bottom Strike templates aligned
on centerline of Device, Rods, and Strikes on door. Tape the templates in
place and mark the holes.
D. Locate and tape the Trim Template to door (See the instructions packed with
Trim).
E. Mark and prepare holes:
Device: Each (2) 1/4-20 Machine Screws (Metal reinforced door only.) or (2)
3/8" (10mm) Dia. Sex Nuts & Bolts
Top Latch Case & Bottom Bolt Case: Each (2) 7/32" (5.5mm) Dia. Holes
(Door Inside Face Only)
Top Strike: (2) 10-24 Machine Screws or (2) #10 Wood Screws
Note: Third screw MUST ONLY be used to lock Strike in nal position
(Section 8, Step 3).
Bottom Strike: 5/8" (16mm) dia x 3/4" (19mm) deep hole
C
L
C
L
Horizontal
Reference
Device,
Rods, and
Strikes
LHR Door
Inside Face
Top Strike
Template
Top Latch
Template
Device
Template
Bottom Case
Template
Bottom Strike
Template
FINISHED FLOOR
C
L
C
L
Horizontal
Reference
and Device
Centerline
Rods, and
Strikes
Centerline
LHR Door
Inside Face
DOOR
(1014)
39-15/16
FINISHED
FLOOR
Measure Gap:
C
L
Door
or Style
C
L
1-1/8
(29)
Note: The Bottom Bolt will retract to 1/8" (3mm) above the
Floor Strike. Floor covering in the door path must be laid out
accordingly.

Related product manuals