EasyManua.ls Logo

Atlantic Boilers VF 40 - VF Control Panel

Default Icon
40 pages
Print Icon
To Next Page IconTo Next Page
To Next Page IconTo Next Page
To Previous Page IconTo Previous Page
To Previous Page IconTo Previous Page
Loading...
page 38/41
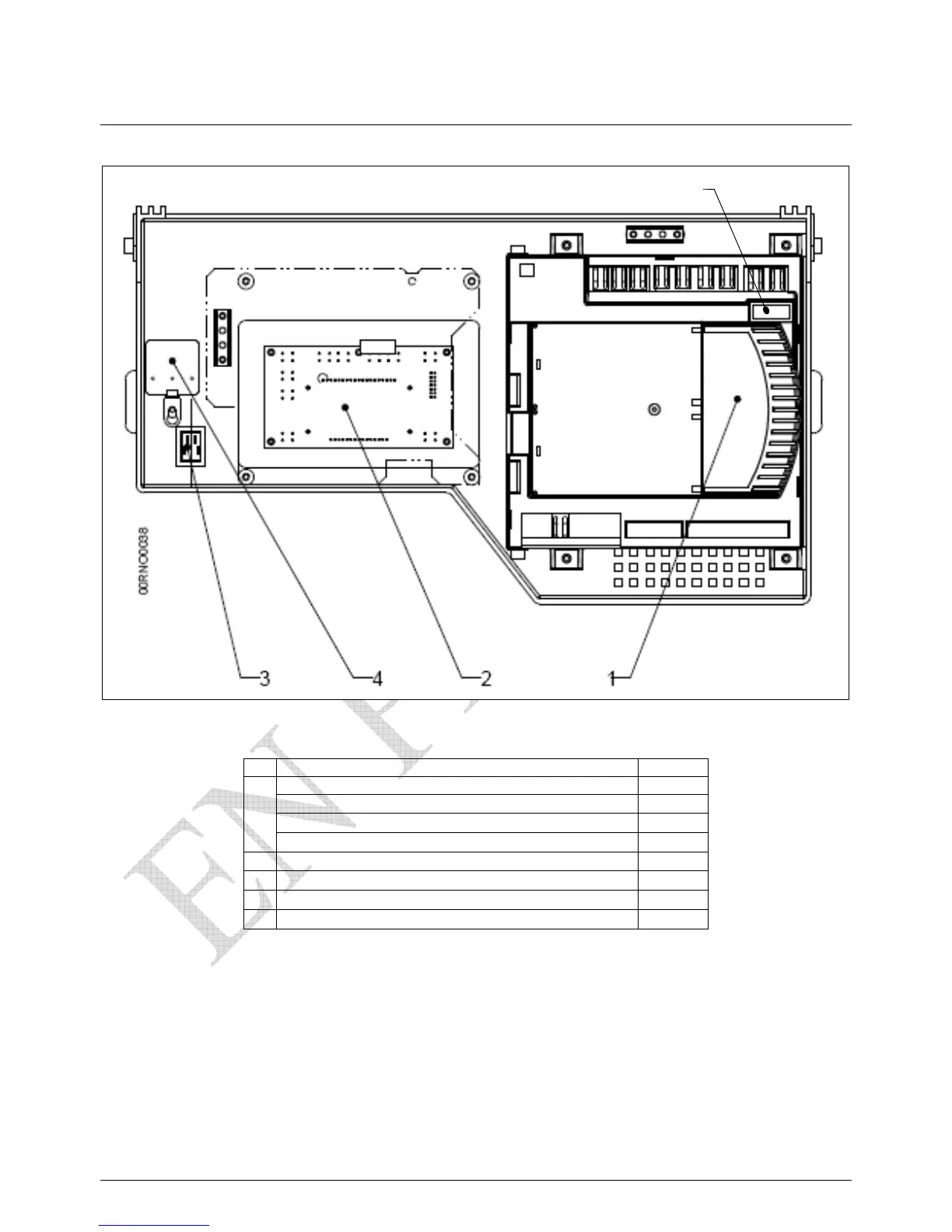
9.3. VF control panel
D escription Code
boiler controller LMU 64 VARFREE 60 072877
1
boiler controller LMU 64 VARFREE 100 072878
2
Interface HMI 060430
3 on/off switch 070385
4 CEM filter 071487
5 T6.3H fuse 071898
5

Related product manuals