EasyManua.ls Logo

Atlas Copco GA132 - Page 21

Atlas Copco GA132
41 pages
To Next Page IconTo Next Page
To Next Page IconTo Next Page
To Previous Page IconTo Previous Page
To Previous Page IconTo Previous Page
Loading...
2920 1251 02
21
Instruction book
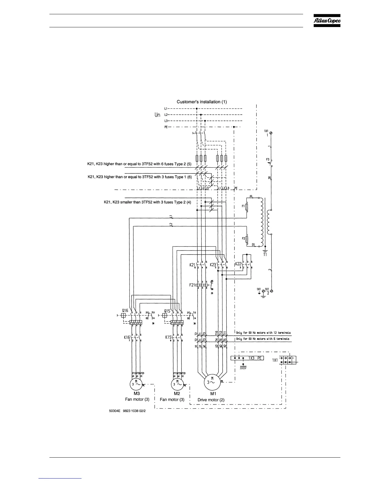
Fig. 9a IEC/VDE

Related product manuals