EasyManua.ls Logo

Atlas Copco XA(S) 300 DD7

Atlas Copco XA(S) 300 DD7
72 pages
To Next Page IconTo Next Page
To Next Page IconTo Next Page
To Previous Page IconTo Previous Page
To Previous Page IconTo Previous Page
Loading...
- 20 -
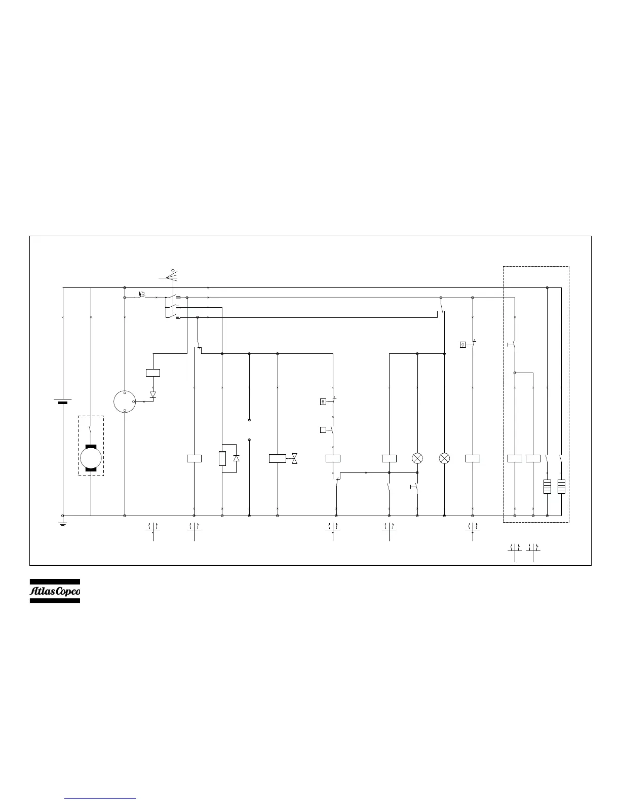
ELECTRICAL SYSTEM
All compressors are equipped with a negative earthed system.
h
22111
d10
d6
d6a8a8b3
d10
d7b3 c1
1212
1817
111616
P3
K6
P2
S6
K5
K5 K6
11999
10
15
14
13
5
6
7
4
3
2
1
33338
121212121212121212
+
G2
-
K0
K1
H2
K3
S5
H1
K2
K1
K3
Auxiliary
V2
K0
33
S1
0
1
3
2
30
32
31
P1
M1
M
S4K2
P
S3
S2
Y1
K4
F1
D-
B+
D+
G1
V1
K4
(9822 0841 15)
Cold Start Option.

Table of Contents

Related product manuals