EasyManua.ls Logo

Atlas Copco XA(S) 300 DD7

Atlas Copco XA(S) 300 DD7
72 pages
To Next Page IconTo Next Page
To Next Page IconTo Next Page
To Previous Page IconTo Previous Page
To Previous Page IconTo Previous Page
Loading...
- 22 -
b3
12
b6
13
b3b3
b3
12
b6
12
34
9822 0797 01
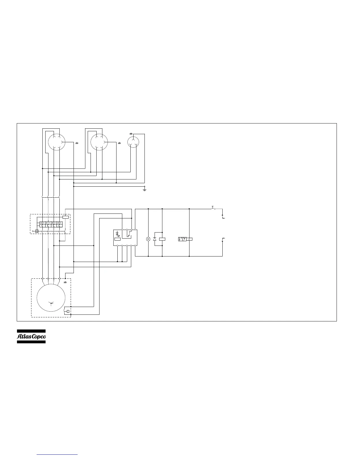
To Circuit diagram
b3
b6
12
b6b6
13
3
12
13
13
Y2
R
B
P
S7
51
52
35
K5
A2
A1
u
S6
H3
W1
b6
16
b0
b0
W1
16
b6
N
b0
16
b54
b54
b0
b54
W1
b0
b0
N
16A16A16A
Q1
16A
N
N
W1
U1
V1
W
V
U
8
7
6
5
4
3
2
1
K5
MX
c0
c0
c0
c0
c0
c0
c6
c6
c0 c0 c0 c6 c54
G3
U1 V1 W1 N
G
16A
L1L2
L3
N
N
L3
L2
L1
X1.1
c0 c6
c54
16A
L3 N
N
L2
X1.3
c0 c0 c0 c6 c54
16A
L1L2
L3 N
N
L3
L2
L1
X1.2
PE
D1
K6
R<
11
1214
RT
PE
A1
A2L
XA(S) 137 DDG - XA(S) 300 DD7G
This generator is built to supply a sheer
alternating current IT network.

Table of Contents

Related product manuals