EasyManua.ls Logo

AUMA SEVEN 2SA7 - Page 23

AUMA SEVEN 2SA7
28 pages
Print Icon
To Next Page IconTo Next Page
To Next Page IconTo Next Page
To Previous Page IconTo Previous Page
To Previous Page IconTo Previous Page
Loading...
Electric Rotary Actuators 2SA7
Technical Data
Y070.304/EN Page 23
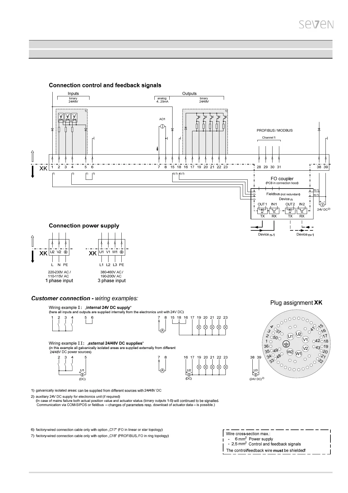
Wiring diagram ECOTRON with Fieldbus and FO Y070.360
4
0
2
8
2
9
3
0
3
1
32
5
6
7
8
9
2
7
2
6
2
5
2
4
2
3
14
1
3
1
2
1
1
1
0
4
4
4
5
4
6
4
7
3
8
3
9
max. 125 mA
CLOSE
OPEN
G-BI
STOP
Output 5
Output 4
Output 3
Output 2
Output 1
P-BO
G-BO
P24 int.
G24 int.
P24 int.
G24 int.
Customer connection Actuator internal
L2
L1
L3
PE
N
L1
PE
Actuator internalCustomer connection
+
-
1A
0 V
1B
5 V
P24 ext.
G24 ext.

Related product manuals