EasyManua.ls Logo

Avaya IP600 - Connect Cabinet Grounds and Other Grounds

Avaya IP600
494 pages
Print Icon
To Next Page IconTo Next Page
To Next Page IconTo Next Page
To Previous Page IconTo Previous Page
To Previous Page IconTo Previous Page
Loading...
Installation and Upgrades for DEFINITY ONE and
IP600 Internet Protocol Release 10
555-233-109
Issue 6
December 2001
Install and Cable the Cabinet
1-68Check AC power and ground for DEFINITY ONE
1
Connect cabinet grounds and other grounds
Follow these additional grounding requirements:
The approved ground wire must be green, 6 AWG (#40) (16 mm
2
), copper,
stranded wire. This is in addition to the ground wire in the AC power cord.
Bond all approved grounds at the single-point ground to form a single
grounding electrode system.
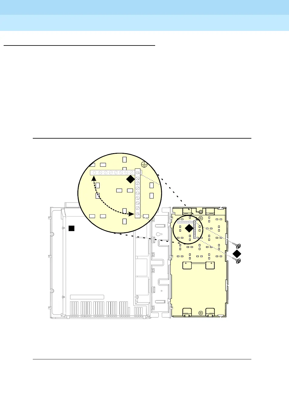
Install the ground block and ground wire on cabinets
1. Mount the ground block as shown in Figure 1-32.
Figure 1-32. Ground block installation to right CMC panel
Figure Notes
1. #12 x 1-inch shoulder screws 2. Single-point ground block
indmingb RPY 012398
1
2
2
A

Table of Contents

Other manuals for Avaya IP600

Related product manuals