EasyManua.ls Logo

Axis P1368-E - Page 117

Axis P1368-E
168 pages
Print Icon
To Next Page IconTo Next Page
To Next Page IconTo Next Page
To Previous Page IconTo Previous Page
To Previous Page IconTo Previous Page
Loading...
AXIS P1368-E Network Camera
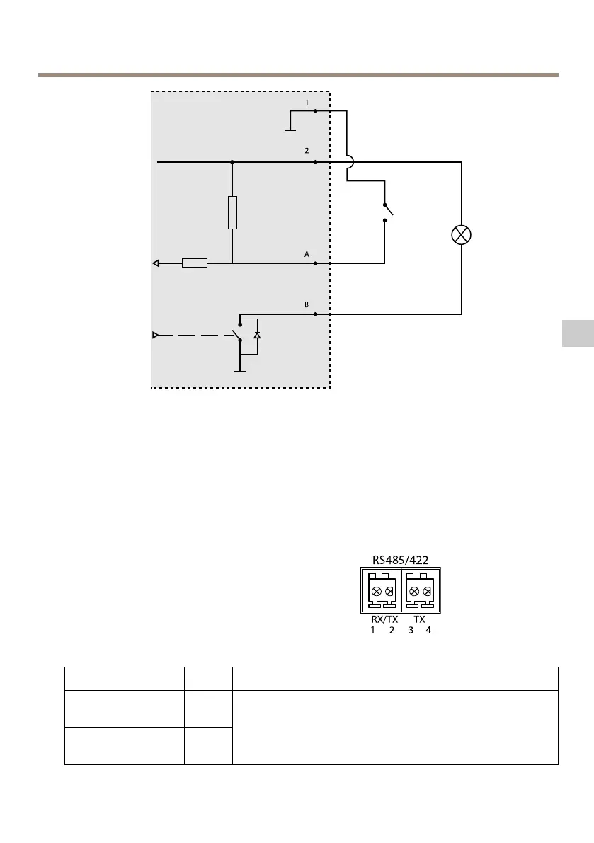
ES
1
0 V CC (-)
2
Salida de CC 12 V, 50 mA máx.
A
E/S congurada como entrada
B
E/S congurada como salida
Conector RS485/RS422
Dos bloques de terminales de 2 pines para la interfaz serie RS485/RS422 usada para controlar
equipos auxiliares, como dispositivos de movimiento horizontal/vertical.
El puerto serie puede congurarse para admitir:
Semidúplex RS485 de dos cables
Dúplex completo RS485 de cuatro cables
Símplex RS422 de dos cables
Dúplex completo RS422 de cuatro cables
para comunicación dúplex punto a punto
Función
Pin Notas
RS485B alt
RS485/422 RX(B)
1
Par RX para todos los modos (RX/TX combinados para RS485
de dos cables)
RS485A alt
RS485/422 RX(A)
2
117
Available from A1 Security Cameras
www.a1securitycameras.com email: sales@a1securitycameras.com

Table of Contents

Other manuals for Axis P1368-E

Related product manuals