EasyManua.ls Logo

Axpert VM-1000 - DC to DC Converter (Push-Pull)

Axpert VM-1000
30 pages
Print Icon
To Next Page IconTo Next Page
To Next Page IconTo Next Page
To Previous Page IconTo Previous Page
To Previous Page IconTo Previous Page
Loading...
维修手册
专案名称:
AxpertVM1KW/VM2KW
专案编号:
S1701112
修订版次:
00 PAGE 9/30
V-RDP-004-73 A
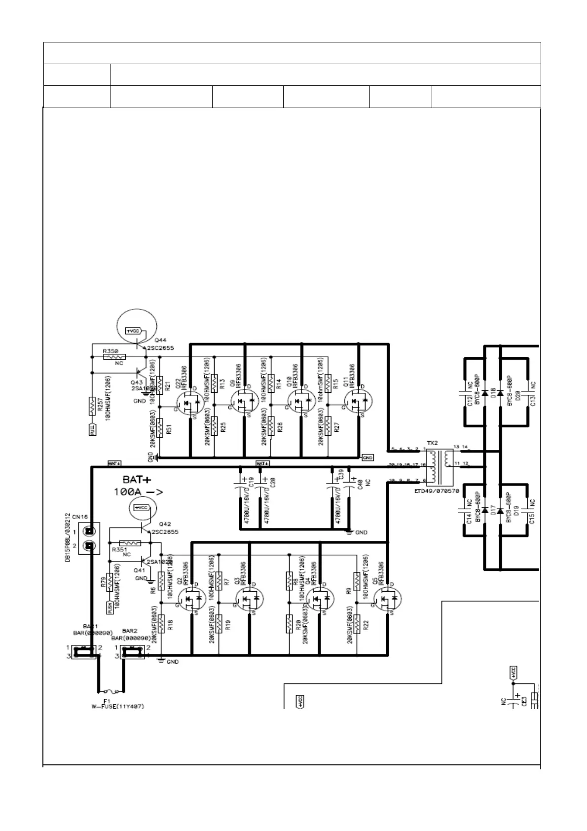
3.2 DC to DC Converter (push-pull)
The push-pull topology is a transformer isolated forward-mode regulator. Unlike the
Fly-back transformer, the push-pull transformer does not store any energy and output current is drawn
when either power switches (Q9-Q11 or Q2-Q4) is conducting.Q22 and Q5 NC
A push-pull topology is shown in figure 3.2, power switch Q9-Q11 and Q2-Q4 receive 180 out-of-phases.
Refer to figure 3.2, the battery voltage is transformed through a push-pull DC-DC converter to >330Vdc
as DC BUS for inverter. When the line fails, the DC BUS voltage is caught up to supply the power needed
by the inverter immediately.
The output voltage (DC BUS) must be higher than the input voltage (BAT+) .It mentioned by the primary
turns and secondary turns. In this circuit, BAT= + 12V or BAT=+24V,DC BUS voltage above 330Vdc.
Figure 3.2 Push-pull topology

Related product manuals