EasyManua.ls Logo

Azbil MIZCON Plus - Page 8

Azbil MIZCON Plus
24 pages
Print Icon
To Next Page IconTo Next Page
To Next Page IconTo Next Page
To Previous Page IconTo Previous Page
To Previous Page IconTo Previous Page
Loading...
8 AB-6650
63
3940 or 19940 (cable length)
170
85 85
330
20
370
350
10
42
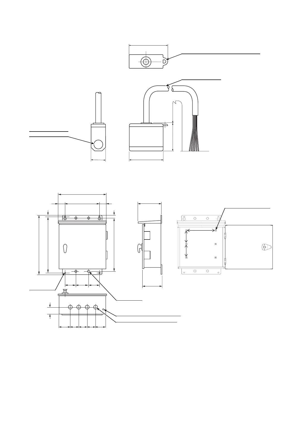
4-electrode sensor: Part No. 81301430-001 (4 m long cable) / 81301430-002 (20 m long cable)
80
Wire hanging tab for the sensor installation
Sensor cable (φ12.5 )
Sampling probe (with
the electrodes inside)
29 70
Figure 3. Dimensions and parts identification: 4-electrode sensor (mm)
Rain-proof case: Part No. DY3001A2002
280
40 200 40 151
Controller mounting hole
(6 holes)
63 74 63 122
Mounting hole
(φ7 × 4 holes,
for wall-mount) Mounting hole
(φ14 × 4 holes, for U-bolt to mount onto a DN50 pipe)
Mounting hole (M4, for ground line)
Wire conduit hole (φ22 × 4 holes)
65 50 50 50 65
Figure 4. Dimensions and parts identification:
Rain-proof case with the front door closed (mm)
Figure 5. Dimensions and parts identification:
Rain-proof case with the front door open (mm)

Related product manuals