EasyManua.ls Logo

Baoli CPD30J - Multifunctional Integration Control System (DC)

Default Icon
124 pages
Print Icon
To Next Page IconTo Next Page
To Next Page IconTo Next Page
To Previous Page IconTo Previous Page
To Previous Page IconTo Previous Page
Loading...
56
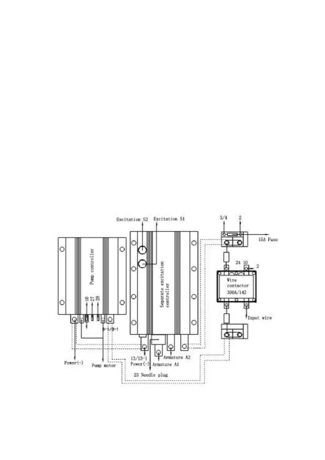
4.2 Multifunctional integration control system (DC)
Multifunctional integration control system consists of separately excited motor
controller, pump controller and contactor. Separately excited motor controller is composed
of controller and accelerator. (Fig.4-6, Fig.4-7)
(1) SX transistor controller
SX transistor controller is introduced by GE in USA using the advanced technology, it
has the advantages as follows: independently controlling the armature and excitation
circuit, the best attributes of both the series and the shunt motors can be combined, it has
high torque at low speed, a plug braking, regeneration control, thermal protector and
battery protector etc.
(2) The accelerator is composed of start switch and potentiometer. The potentiometer
converts the degree of the pedal into changes in the resistance of the potentiometer, then
transfer to the controller by means of voltage change. (Fig.4-8)
Fig.4-6 Controller assy(DC CPD10-25)

Table of Contents

Related product manuals