EasyManua.ls Logo

Bard C24H1-A - Figure 2 Unit Dimensions

Default Icon
25 pages
Print Icon
To Next Page IconTo Next Page
To Next Page IconTo Next Page
To Previous Page IconTo Previous Page
To Previous Page IconTo Previous Page
Loading...
Manual 2100-586D
Page 7 of 25
3"
8620-160 Drain Fitting -
Supplied with unit,
field installed.
MIS-3190
Panel
Air Inlet
Door
Vent Option
Condenser
Filter Access
Ventilation
Air
Front View
F
W
5.75
G
Panel
indoor coil
Electric
Cond.
Access
Heater
Pitch
Rain Hood
Side View
Heat
Built In
Air
Disconnect
(Lockable)
Access Panel
Drain for
Outlet
C. Breaker/
ERV and
ECONWMS
only hood
Low Voltage
Electrical
Entrance
High Voltage
Electrical
Entrance
D
2.13
A
C H
K
J
I
Supply Air Opening
Return Air Opening
Top Rain
Flashing
Shipping
Location
Back View
Electrical
Entrances
Optional
Side Wall
Mounting
Brackets
(Built In)
T
S
S
M
.44
L
Q
P
S
N
O
E
R
S
S
B
Bottom Installation
Bracket - optional use
for direct mount, not
used when unit
installed with curb
C**H
RIGHT UNIT
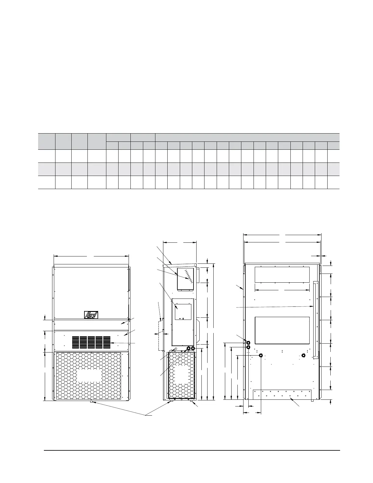
FIGURE 2
All dimensions are in inches. Dimensional drawings are not to scale.
Dimensions of Basic Unit for Architectural & Installation Requirements (Nominal)
MODEL
WIDTH
(W)
DEPTH
(D)
HEIGHT
(H)
SUPPLY RETURN
A B C B E F G I J K L M N O P Q R S T
C24H1
C30H1
38.200 17.125 70.563 7.88 27.88 13.88 27.88 40.00 10.88 25.75 17.93 26.75 28.75 29.25 27.00 2.63 39.13 22.75 9.14 5.00 12.00 5.00
C36H1
C42H1
42.075 22.432 84.875 9.88 29.88 15.88 29.88 43.88 13.56 31.66 30.00 32.68 26.94 34.69 32.43 3.37 43.00 23.88 10.00 1.44 16.00 1.88
C48H1
C60H1
42.075 22.432 93.000 9.88 29.88 15.88 29.88 43.88 13.56 37.00 30.00 40.81 35.06 42.81 40.56 3.37 43.00 31.00 10.00 1.44 16.00 10.00
shipping brackets after the unit is in its nal operating
location.
Remove the side grille to gain access to the compressor
shipping brackets. The brackets are located on the
compressor double isolation base at the front and rear
of the compressor. The brackets are secured to the unit
base with two (2) screws, and secured to the isolation
plate with a 1/4" nut. Remove and dispose of the two
(2) screws and brackets. Re-install the 1/4" nut once
bracket is removed.

Table of Contents

Related product manuals