EasyManua.ls Logo

Baumuller BM5000 Series - BM504 X Dimensions; BM504 X-C;-S Dimensions

Baumuller BM5000 Series
330 pages
Print Icon
To Next Page IconTo Next Page
To Next Page IconTo Next Page
To Previous Page IconTo Previous Page
To Previous Page IconTo Previous Page
Loading...
Technical data
Instruction handbook b maXX 5000
Document No.: 5.09021.16
31
of 328
3
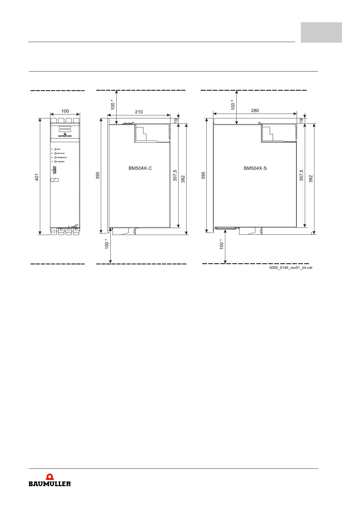
3.1.2 BM504X dimensions
Figure 5: BM504X-C/-S dimensions
*: Observe minimum clearance.
Please follow the notes for mounting and
ZCoolin
gon page 56.

Table of Contents

Related product manuals