EasyManua.ls Logo

Baumuller BM5000 Series - BM532 X-A Dimensions

Baumuller BM5000 Series
330 pages
Print Icon
To Next Page IconTo Next Page
To Next Page IconTo Next Page
To Previous Page IconTo Previous Page
To Previous Page IconTo Previous Page
Loading...
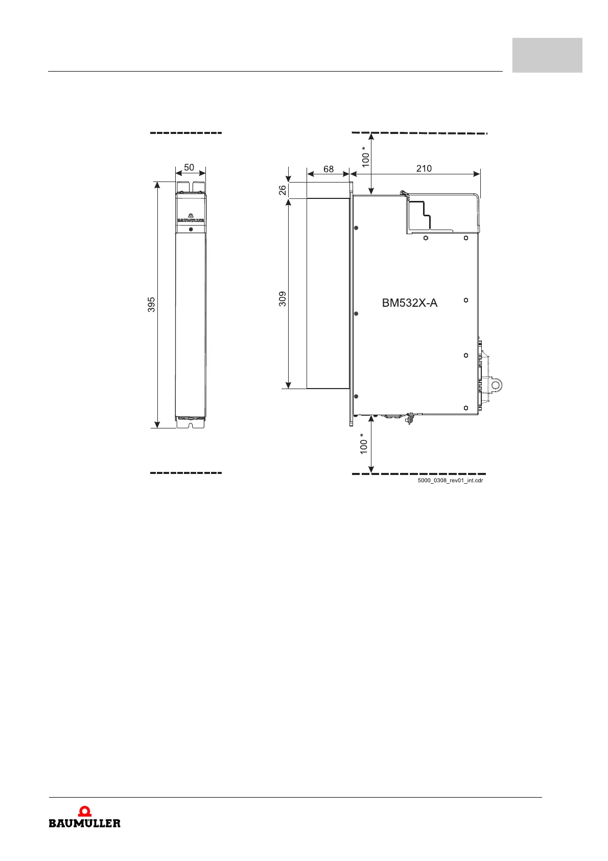
Figure 11: BM532X-A dimensions
*: Observe minimum clearance.
Please follow the notes for mounting and
ZCoo
lingon page 56.
Technical data
Instruction handbook b maXX 5000
Document No.: 5.09021.16
37
of 328
3

Table of Contents

Related product manuals