EasyManua.ls Logo

Becker R30-17 - Advanced Control System Wiring

Becker R30-17
28 pages
Print Icon
To Next Page IconTo Next Page
To Next Page IconTo Next Page
To Previous Page IconTo Previous Page
To Previous Page IconTo Previous Page
Loading...
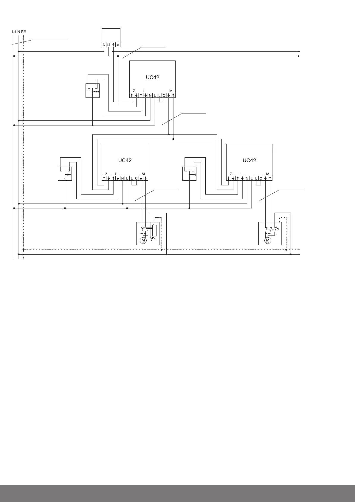
Central, group and individual control using Centronic UnitControl UC42
Mains 230 V / 50 Hz
Central
Group
Individual Individual
230 V / 50 Hz
Central cable
(connection to further control units)
230 V / 50 Hz
230 V / 50 Hz
Electronics
230 V / 50 Hz
Control unit
24-en

Related product manuals