EasyManua.ls Logo

Beckhoff CP2912 - Page 23

Beckhoff CP2912
33 pages
Print Icon
To Next Page IconTo Next Page
To Next Page IconTo Next Page
To Previous Page IconTo Previous Page
To Previous Page IconTo Previous Page
Loading...
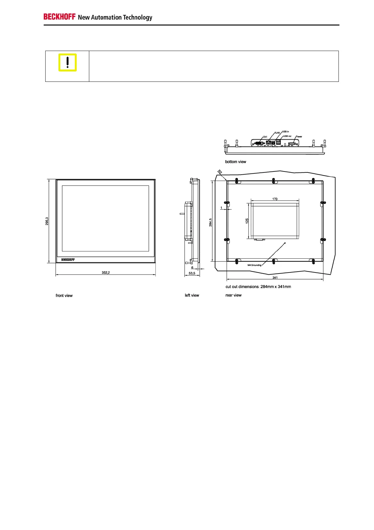
Assembly dimensions
CP2915 with 15“ display, landscape (all dimensions are in mm)
Notice mounting orientation
Warning
The assembly of the unit must take place with the orientation diagrammed here.
CP29xx 21

Table of Contents

Related product manuals