EasyManua.ls Logo

Beckhoff CP2912 - Page 29

Beckhoff CP2912
33 pages
Print Icon
To Next Page IconTo Next Page
To Next Page IconTo Next Page
To Previous Page IconTo Previous Page
To Previous Page IconTo Previous Page
Loading...
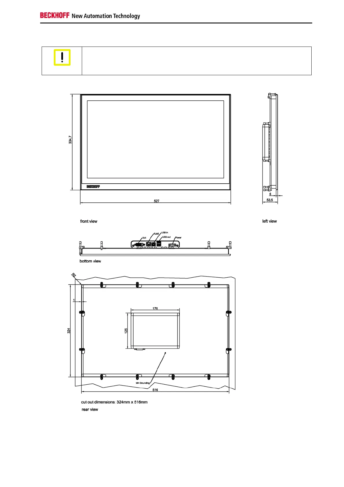
Assembly dimensions
CP2921 with 21.5“ display, landscape (all dimensions are in mm)
Notice mounting orientation
Warning
The assembly of the unit must take place with the orientation diagrammed here.
CP29xx 27

Table of Contents

Related product manuals