EasyManua.ls Logo

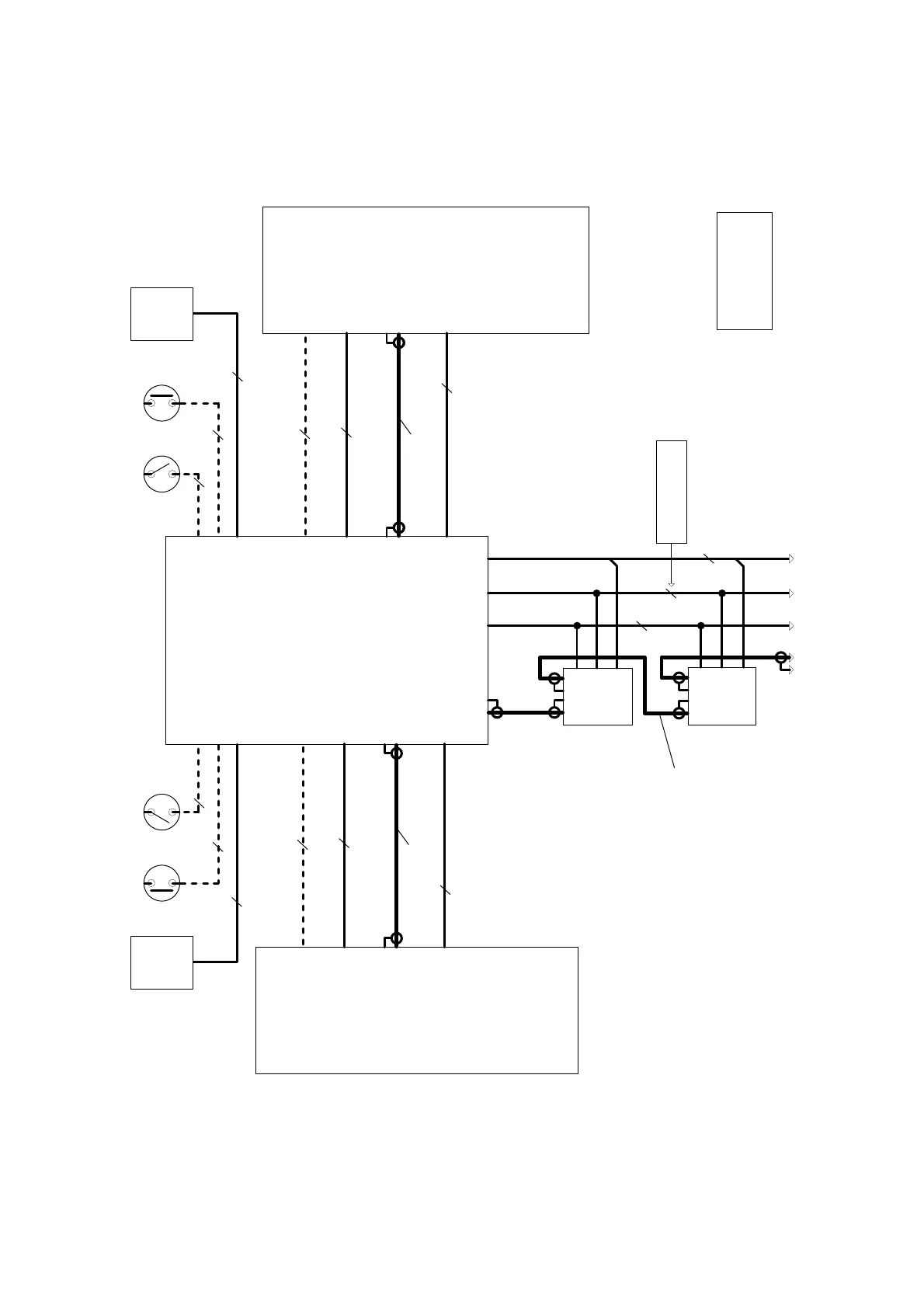
Bell System bellview - 2 Door 1-10 Way System Wiring; Diagram 5 a: Cabling Layout

Default Icon
58 pages
Print Icon
To Next Page IconTo Next Page
To Next Page IconTo Next Page
To Previous Page IconTo Previous Page
To Previous Page IconTo Previous Page
Loading...
Door
Exit Button
Door Monitor
Switch
(optional)
(optional)
or
Fire Switch
Diagram 5a : Cabling for a 2 Door 1 - 10 Way Bell View Video System
Door
Lock
Release
Exit ButtonDoor Monitor
Switch
(optional)
(optional)
or
Fire Switch
Lock
Release
2
8
1 per Phone
75R Co-ax
2
8
1 per Phone
75R Co-ax
Electrical
75R Co-ax
2nd
Video
Phone
Phone
Video
1st
To remaining phones
2
1 per Phone
2 DOOR
BV 1-10
Panel
1
2
Panel
Cupboard
2
1
2
2
2 2
2
2
Note
Push Buttons
Misc
Trades
Trades
Misc
Push Buttons
Call lines
Other (common wires)
Video Power
5 - 9 (see the
Co-ax connections on each telephone can
be made to either terminal block.
© 1997 Bell System (Telephones) Ltd.
previous pages)
Page 4 of 6

Table of Contents

Related product manuals