EasyManua.ls Logo

BendPak HD-9STX - Page 88

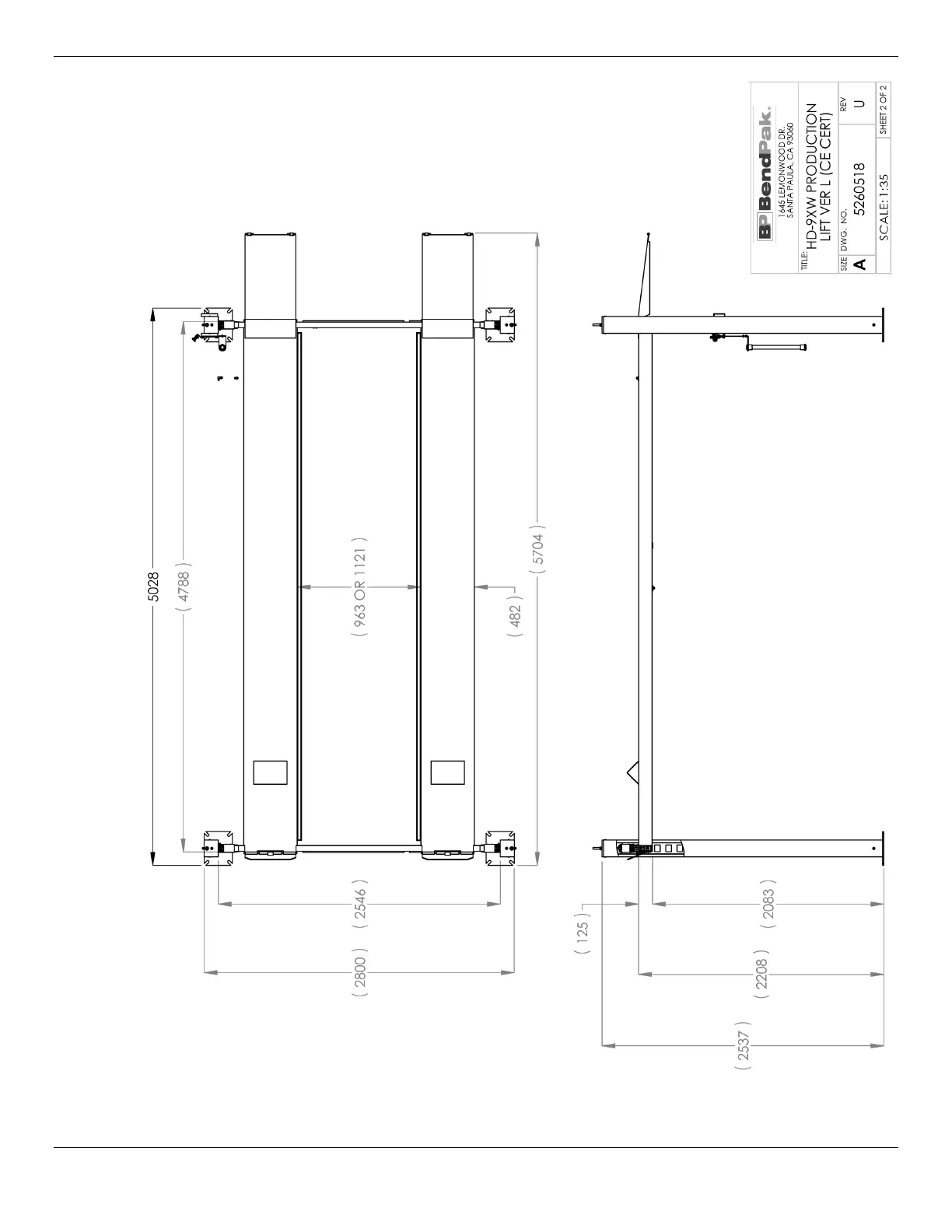
BendPak HD-9STX
92 pages
Print Icon
To Next Page IconTo Next Page
To Next Page IconTo Next Page
To Previous Page IconTo Previous Page
To Previous Page IconTo Previous Page
Loading...
HD-9 Series Four-Post Lifts 88 P/N 5900123 — Rev. M — February 2020

Other manuals for BendPak HD-9STX

Related product manuals