EasyManua.ls Logo

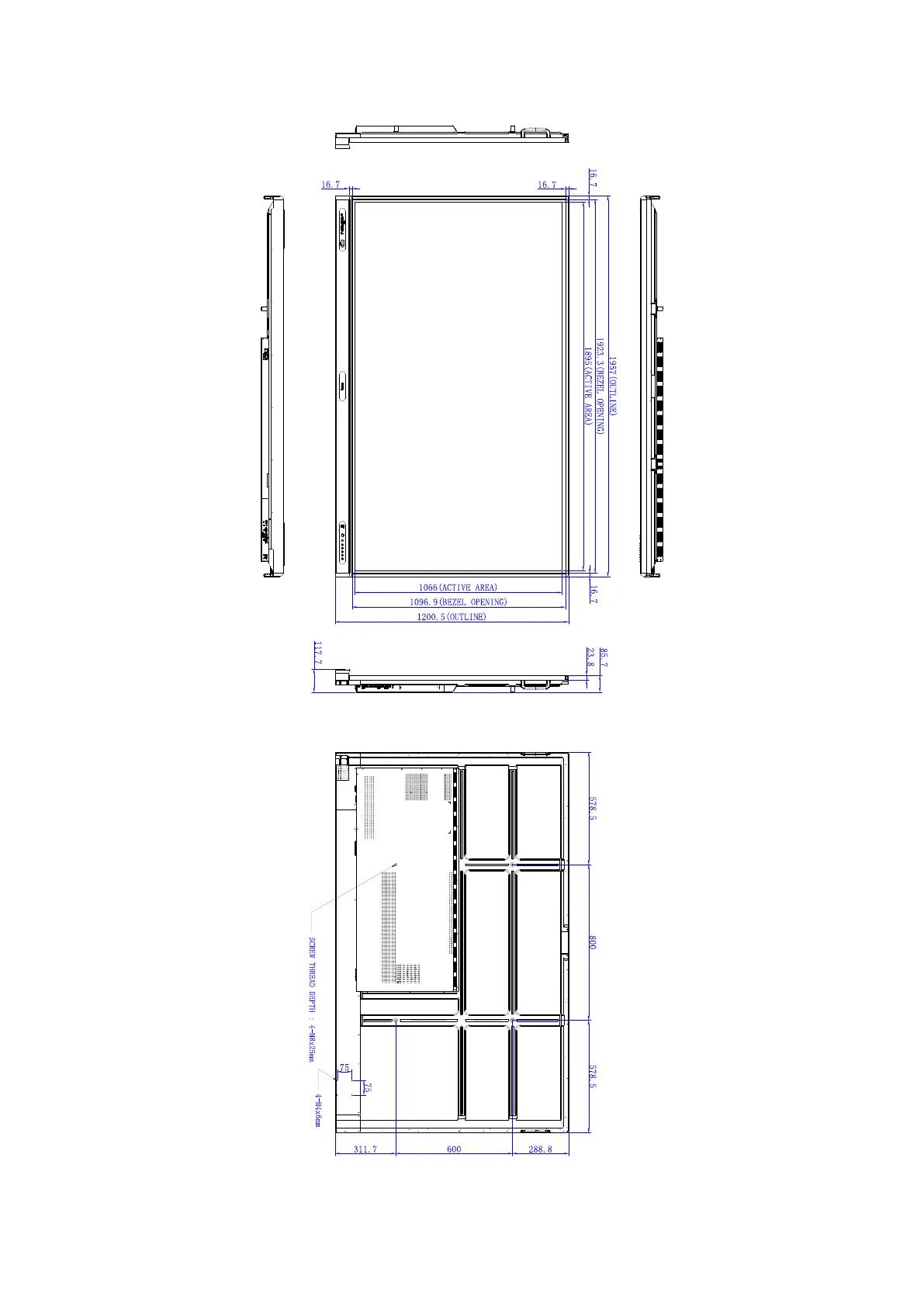
BenQ RP6504 - Dimensions (RP8604)

BenQ RP6504
66 pages
Print Icon
To Next Page IconTo Next Page
To Next Page IconTo Next Page
To Previous Page IconTo Previous Page
To Previous Page IconTo Previous Page
Loading...
26
Dimensions (RP8604)
Unit: mm