EasyManua.ls Logo

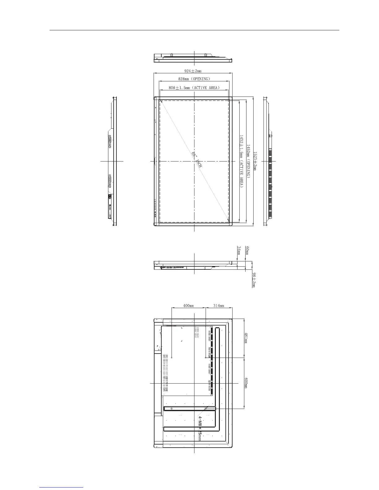
BenQ RP653 - Dimensions (RP653)

BenQ RP653
86 pages
Print Icon
To Next Page IconTo Next Page
To Next Page IconTo Next Page
To Previous Page IconTo Previous Page
To Previous Page IconTo Previous Page
Loading...
Product information 73
Dimensions (RP653)
Unit: mm

Other manuals for BenQ RP653

Related product manuals