EasyManua.ls Logo

Bentel Security FireClass 100 - Zone and Sequence Management; Software Zones; Positive Alarm Sequence (PAS)

Bentel Security FireClass 100
100 pages
Print Icon
To Next Page IconTo Next Page
To Next Page IconTo Next Page
To Previous Page IconTo Previous Page
To Previous Page IconTo Previous Page
Loading...
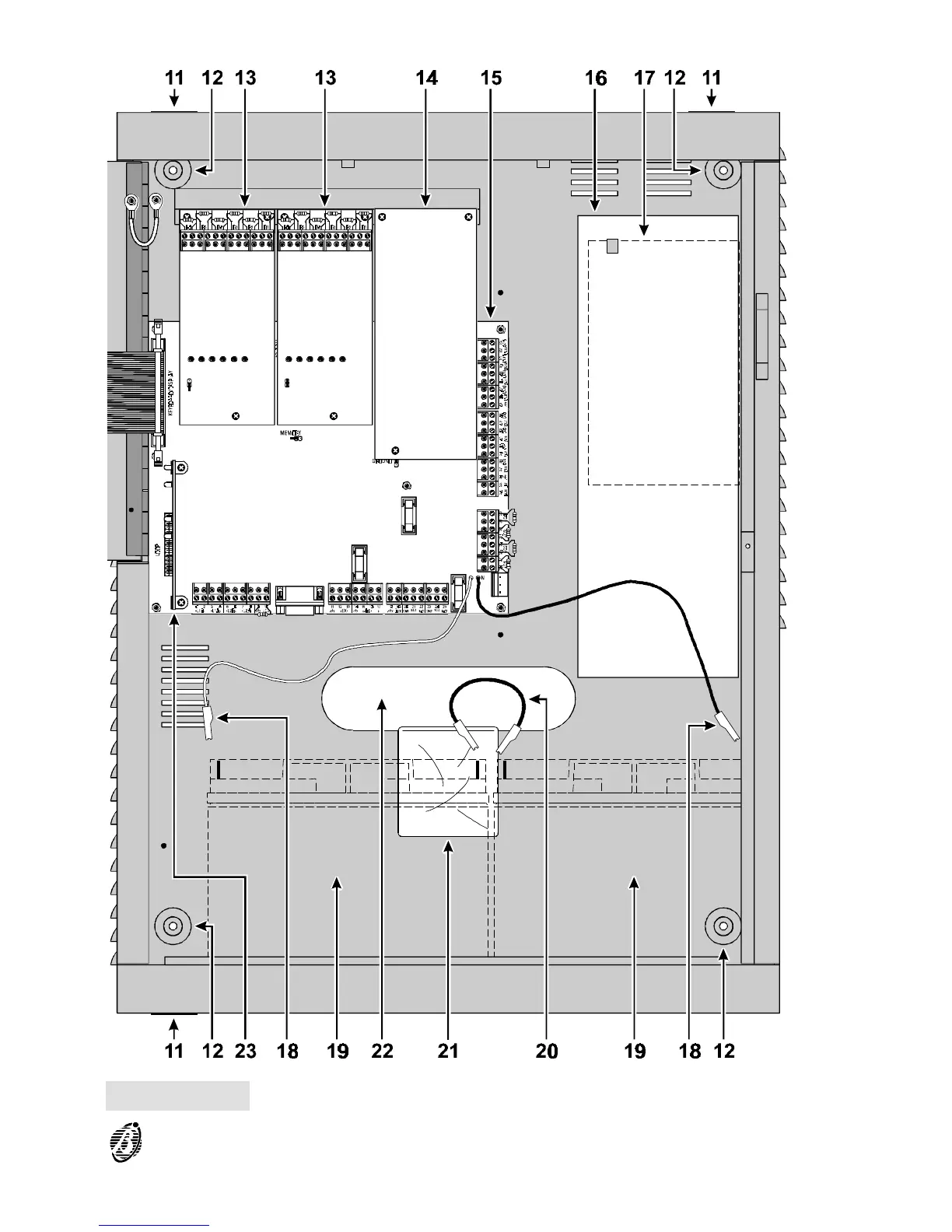
Figure 3 Main unit parts (internal)
PARTS IDENTIFICATION 15

Table of Contents

Other manuals for Bentel Security FireClass 100

Related product manuals