EasyManua.ls Logo

Bentel Security FireClass 100 - Control Panel Operations; Silence Function; Reset Function; Test Function

Bentel Security FireClass 100
100 pages
Print Icon
To Next Page IconTo Next Page
To Next Page IconTo Next Page
To Previous Page IconTo Previous Page
To Previous Page IconTo Previous Page
Loading...
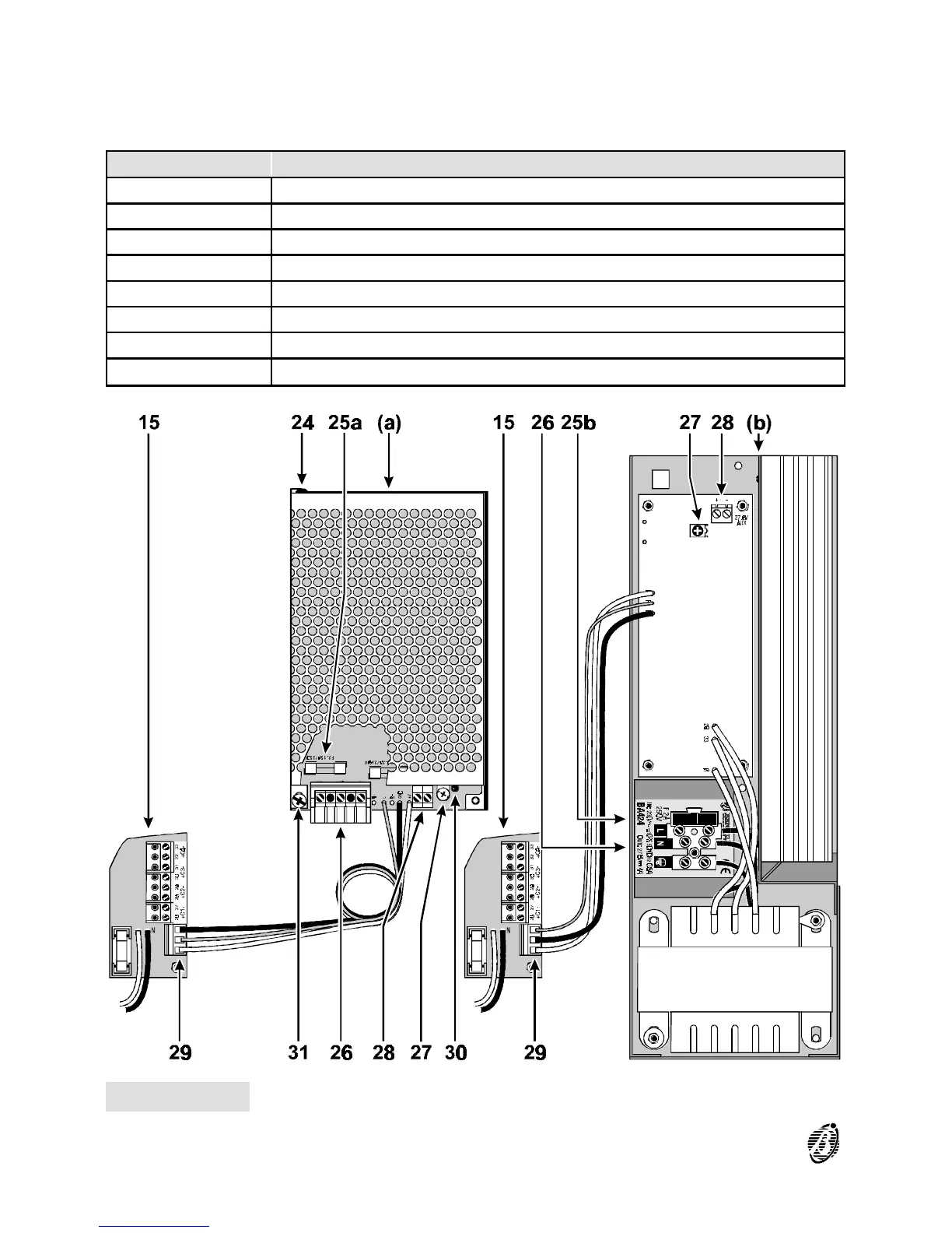
Power unit The FireClass200 is available in two models: FC200/S - with 27.6 V - 2.5 A
Switching power supply (see fig. 3a); FC200 - with 27.6 V - 4 A Linear
power supply (see fig. 3b).
PART DESCRIPTION
24 Rivet to secure switching power supply
25 Power supply protection fuse: a) F3.15A 250V; b) F 2A 250V
26 Terminal board for Mains power connection
27 Fine adjustment trimmer for output voltage
28 Power supply output for devices operating at 24 V (27.6 V)
29 Connector for power supply to the main board
30 Switching-power-supply output voltage signal
31 Screws to secure Switching power supply
Figure 4 Parts of the Power Supply Unit
16 Analogue Fire Control Panel FireClass200

Table of Contents

Other manuals for Bentel Security FireClass 100

Related product manuals