EasyManua.ls Logo

Bertazzoni FD30CON - Wiring Diagram

Bertazzoni FD30CON
49 pages
Print Icon
To Next Page IconTo Next Page
To Next Page IconTo Next Page
To Previous Page IconTo Previous Page
To Previous Page IconTo Previous Page
Loading...
13
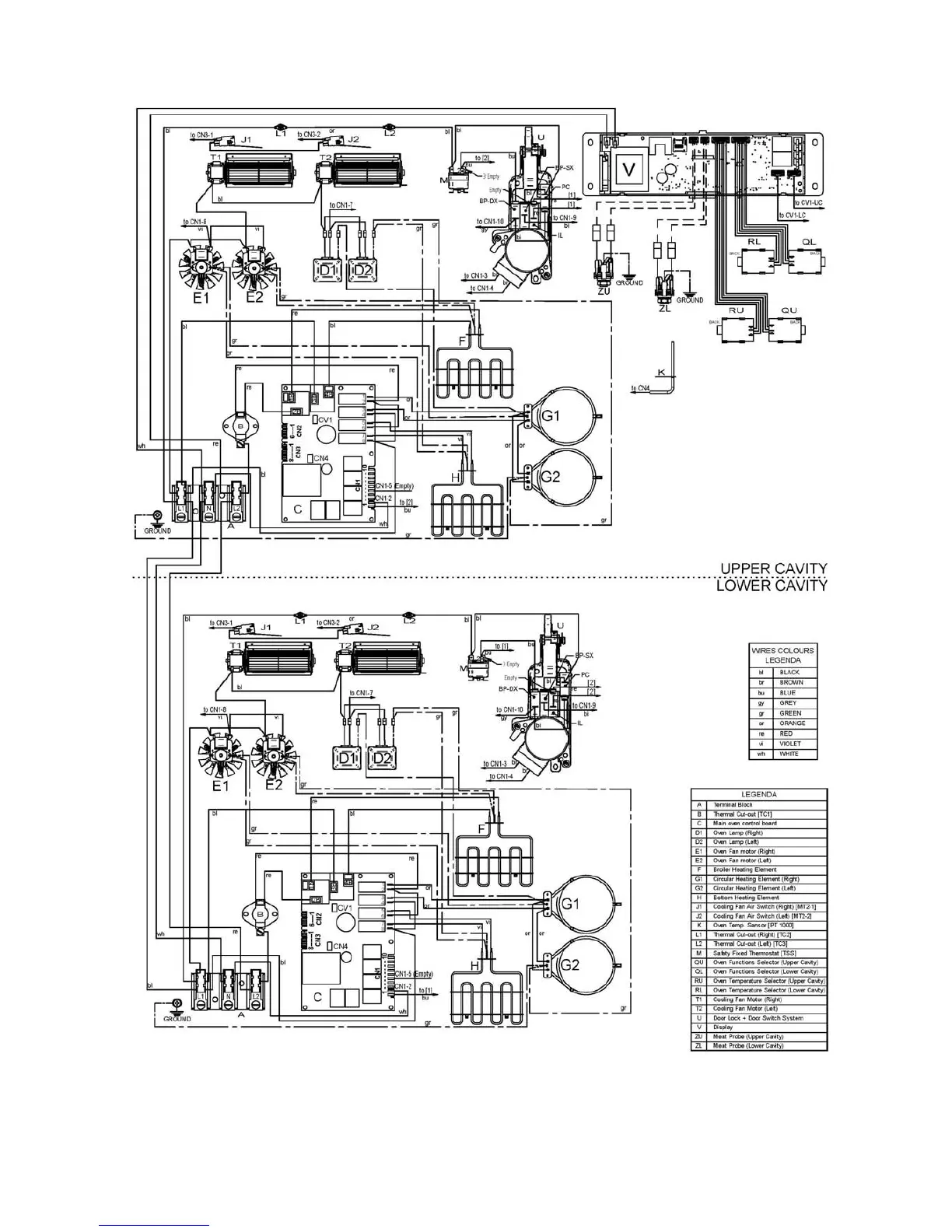
WIRING DIAGRAM
Models: FD30PROX - FD30PROXE - FD30PROXT

Related product manuals