EasyManua.ls Logo

Blue Box SIGMA 2002 - Page 43

Blue Box SIGMA 2002
124 pages
Print Icon
To Next Page IconTo Next Page
To Next Page IconTo Next Page
To Previous Page IconTo Previous Page
To Previous Page IconTo Previous Page
Loading...
Blue Box - 37
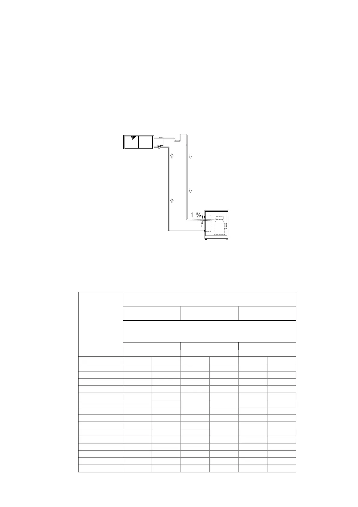
4.9.5 Version LE: evaporating section positioned higher than the condensing unit section
a) Form a siphon on the suction line, at the same height as the evaporator, to avoid drainage of liquid towards the
compressor when the unit is stopped.
b) Make a collection pit on the suction line, downstream from the thermostatic valve bulb, for the collection of
liquid refrigerant that can accumulate during unit shutdown. When the compressor restarts the refrigerant will
evaporate rapidly: it is advisable to create the accumulation pit well away from the bulb to avoid the risk of
affecting the operation of the thermostatic valve.
c) Horizontal sections of the suction line should follow a grade of at least 1% to facilitate oil return to the
compressor.
TABLE 1 - EXTERNAL PIPE DIAMENTERS FOR VERSIONS LE, LE/HP
MODEL
SIGMA 2002/LE
Suction Liquid Suction Liquid Suction Liquid
[mm] [mm] [mm] [mm] [mm] [mm]
3.2 35 18 35 18 42 18
4.2 35 22 42 22 42 22
5.2 35 22 42 22 42 22
6.2 42 22 42 22 42 22
7.2 42 28 42 28 42 28
8.2 42 28 54 28 54 28
9.2 54 28 54 28 54 28
10.2 54 28 54 28 54 28
12.2 54 35 54 35 54 35
13.2 54 35 67 35 67 35
14.4 42 28 42 28 54 28
16.4 42 28 54 28 54 28
18.4 54 28 54 28 54 28
20.4 54 28 54 28 54 28
24.4 54 35 54 35 67 35
26.4 54 35 67 35 67 35
Diameter connection pipes between unit
and remote evaporator
Distance between unit and remote evaporator [m]
10 20 30
Figure 12

Table of Contents

Related product manuals