EasyManua.ls Logo

BMT 964 - Off-Gas Cabinet BMT 964 OG Details; Sample Gas Pump SGP 5 Description

BMT 964
56 pages
Print Icon
To Next Page IconTo Next Page
To Next Page IconTo Next Page
To Previous Page IconTo Previous Page
To Previous Page IconTo Previous Page
Loading...
OZONE ANALYZER BMT 964 Manual, Rev. 04/2021
44
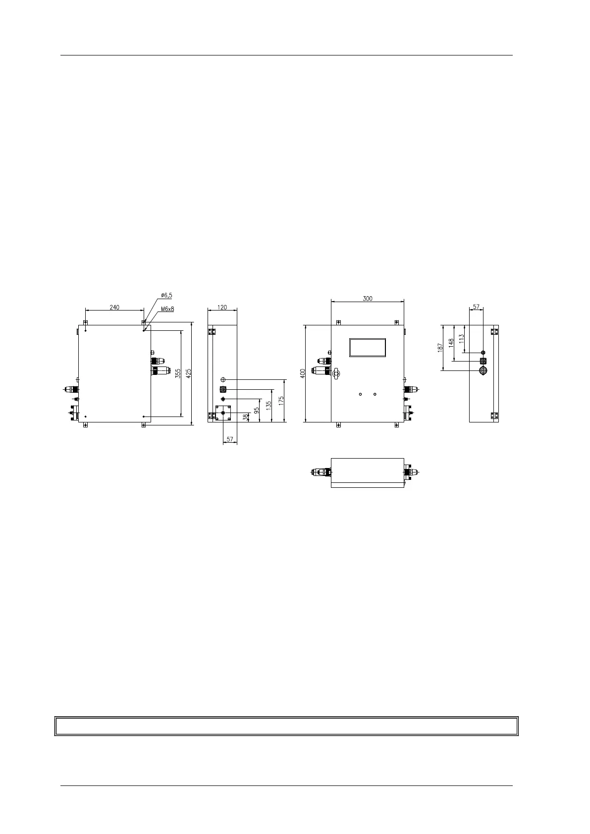
The Off-Gas Cabinet contains an OZONE ANALYZER BMT 964, the ozone resistant sample
gas pump SGP 5, and the DH5 power supply, in a wall mounted aluminum cabinet,
300 x 400 x 120 cm (W x H x D, twice the height of the standard BMT 964C cabinet). The cool-
er/dryer DH5 is mounted upright on top of the reaction vessel, or in a large diameter off-gas
tube.
Off-Gas Cabinet BMT 964OG
As the standard configuration the cabinet contains the UV photometric ozone analyser, a long-
life ozone resistant sample gas pump, the power supply for the external Peltier-electric cool-
er/dryer DH5, a purge unit (solenoid valve/air pump assembly) for fully automatic purging and
zeroing the photometer, a sample gas flow meter, thermal mass flow detection and warning
(LOW FLOW), and a warning system for the internal temperature of the external cool-
er (WARM).
Ozone off-gas leaving an ozone process is not allways at atmospheric pressure. Sometimes it is at
an elevated pressure, and transport of the sample gas to the ozone analyser does not need a
pump. Sometimes the off-gas is not moist, and does not need drying. Consequently the configu-
ration of the off-gas measuring system may be different from case to case.
Sample Gas Pump SGP 5
The sample gas pump SGP 5 is a membrane pump driven by a brushless DC motor. Life expec-
tancy of pump and motor is several years.
The SGP 5 may be operated at a maximal system pressure of ± 100 mbarg. In other words: The
internal pressure may not differ from the ambient pressure by more than 100 mbar. Against zero
pressure head (differential pressure) the pump moves about 0.5 l/min. At a pressure head of 100
mbar it still can pump 0.35 l/min. But this pump is not a compressor! It is a gas mover.
Warning: Do not apply more than 1 barg gas pressure to the instrument!

Table of Contents

Other manuals for BMT 964

Related product manuals