EasyManua.ls Logo

BMT 964 - Sample Gas Cooler;Dryer DH5

BMT 964
56 pages
Print Icon
To Next Page IconTo Next Page
To Next Page IconTo Next Page
To Previous Page IconTo Previous Page
To Previous Page IconTo Previous Page
Loading...
OZONE ANALYZER BMT 964 Manual, Rev. 04/2021
45
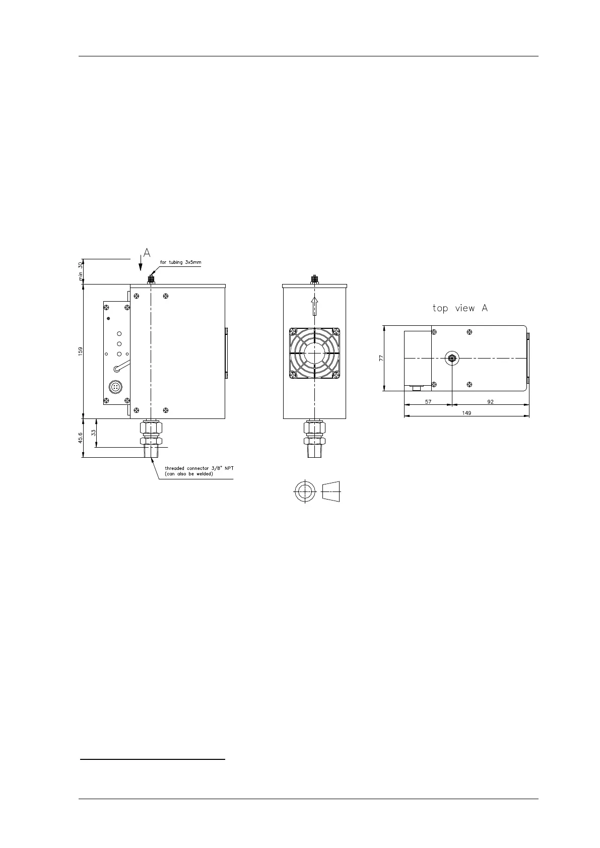
Sample Gas Cooler/Dryer DH5
The DH5 electric cooler/dryer is a box about 80 x 160 x 150 mm (W x H x D). It has to be
mounted standing upright
*
on one "leg" on top of the reaction vessel, or on a large diameter off-
gas tube.
In case the off-gas is at atmospheric pressure, the "leg" is plugged into an ID 12 mm SS fitting
with a PTFE seal. The fitting can be screwed into a 3/8'' NPT threaded bore hole, or it can be
welded directly into a bore hole 17 mm ID. A PVC plug 12 mm OD is permanently linked to the
mounting fitting by a thin SS stranded wire, to tightly close the fitting when the dryer has to be
removed for service or repair.
If the off-gas is at an overpressure, or at a slight vacuum, the DH 5 should be mounted via a ball
valve. The ball valve is screwed into the reactor vessel in a 1/2" NPT threaded bore hole. Weld-
ing the ball valve is not recommended.
The DH5 electric cooler/dryer and the analyser cabinet BMT 964OG are connected with an elec-
tric cable, and with two PTFE tubings 3 x 5 mm leading the sample gas from the reactor to the
analyser for ozone measurement, and leading it back to the reactor after measurement (no critical
ozone destruct necessary). The maximum length of the electrical connection between the cabinet
and the cooler /dryer is 10 m.
*
The DH5 must necessarily stand upright because the condensate formed inside the cooler has to flow back into the
off-gas system.

Table of Contents

Other manuals for BMT 964

Related product manuals