EasyManua.ls Logo

BONFIGLIOLI ACTIVE Cube ACU 201-05 - ACU 401 (75.0 to 132.0 Kw)

BONFIGLIOLI ACTIVE Cube ACU 201-05
292 pages
Print Icon
To Next Page IconTo Next Page
To Next Page IconTo Next Page
To Previous Page IconTo Previous Page
To Previous Page IconTo Previous Page
Loading...
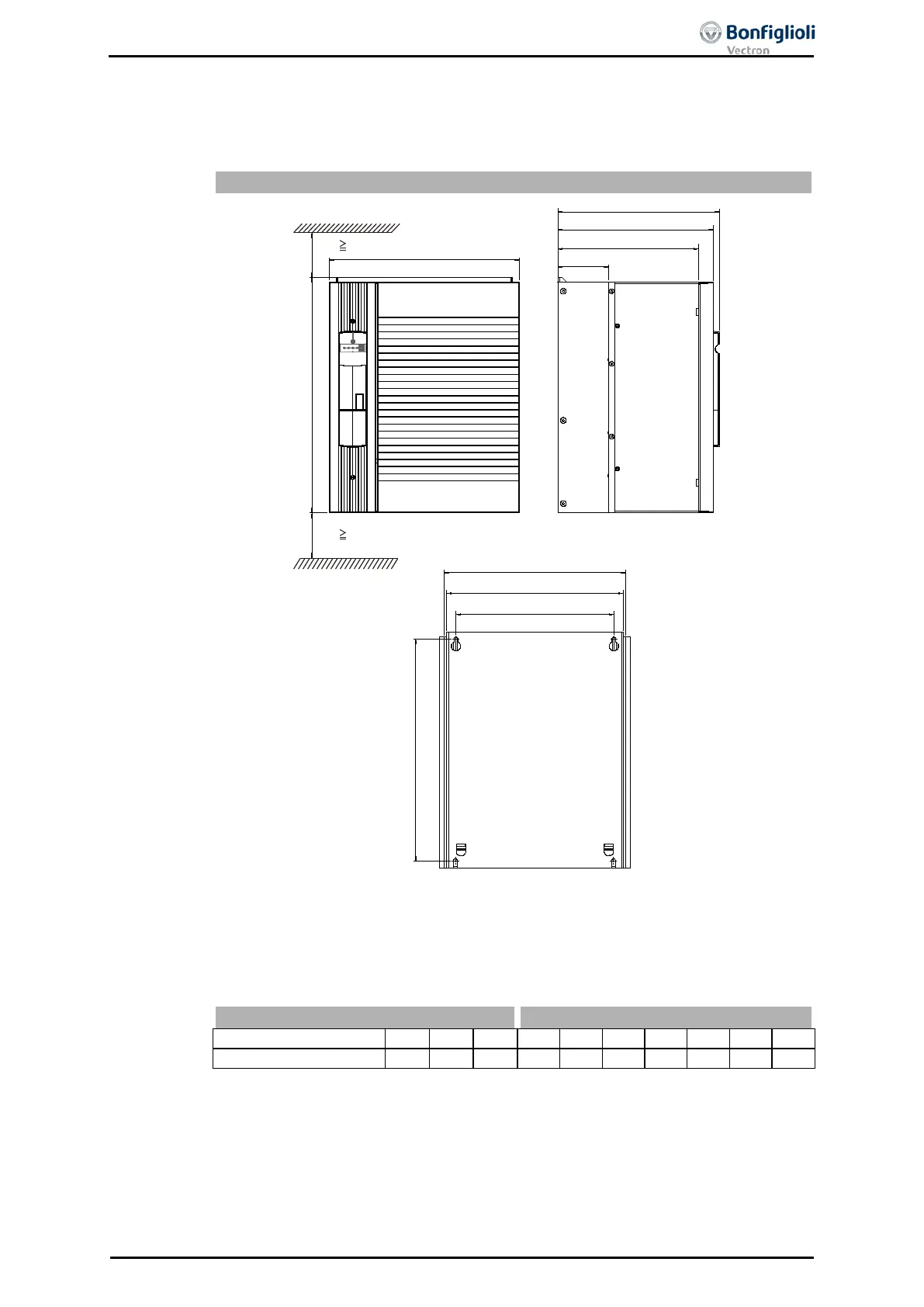
5.5 ACU 401 (75.0 to 132.0 kW)
The frequency inverter is mounted in a vertical position on the assembly panel. The
following illustration shows the standard fitting.
Standard installation
The diameter of the fixing holes is 9 mm.
Assembly is done by screwing the back wall of the frequency inverter to the assembly
panel.
The dimensions of the device and the installation dimensions are those of the stand-
ard device without optional components and are given in millimeters.
Dimensions [mm]
Installation dimensions in mm
ACU
a
b
c
a1
b1
b2
b3
c1
c2
c3
401
75...132 kW
510
412
351
480
392
382
342
338
305
110
a
b
c
c1
c2
c3
b1
b2
b3
a1
x
x
x
300 mm
x
300 mm
06/13 Operating Instructions ACU 47

Table of Contents

Related product manuals