EasyManua.ls Logo

Bosch PC600 - Page 30

Bosch PC600
88 pages
Print Icon
To Next Page IconTo Next Page
To Next Page IconTo Next Page
To Previous Page IconTo Previous Page
To Previous Page IconTo Previous Page
Loading...
Flexible Automation
Digital input modules
1-18
1070 072 144-101
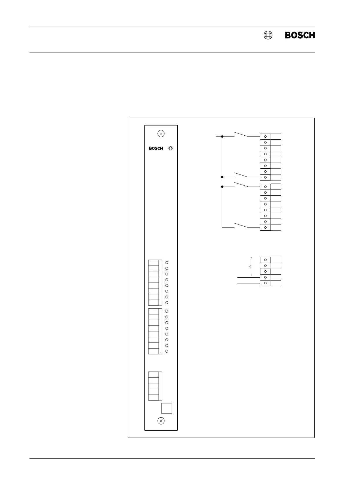
1.5 Input module E 24 V-, order no. 1070 047 963
Input module E 24 V- SF, order no. 1070 075 330
0
1
2
3
4
5
6
7
0
1
2
3
4
5
6
7
24 V
24 V
24 V
0 V
0 V
.
.
.
.
.
.
.
.
.
.
.
.
0 V
0 V
24 V
free
0
1
2
3
4
5
6
7
0
1
2
3
4
5
6
7
24V
24V
24V
0V
0V
E24-
Input
Fig. 1-19 Input module 1070 047 963 and 1070 075 330, terminal assignment

Related product manuals