EasyManua.ls Logo

Bosch RL Series - 20 Wiring Diagrams; Single-Stage, Single-Phase, Standard Unit with Permanent Split Capacitor (PSC) Motor

Bosch RL Series
68 pages
Print Icon
To Next Page IconTo Next Page
To Next Page IconTo Next Page
To Previous Page IconTo Previous Page
To Previous Page IconTo Previous Page
Loading...
Wiring Diagrams
20 Wiring Diagrams
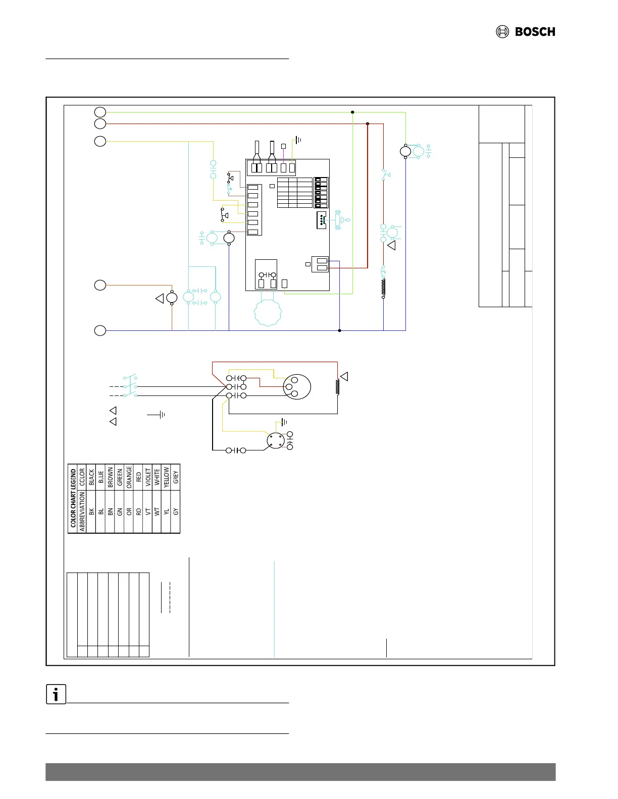
20.1 Single-Stage, Single-Phase, Standard Unit with Permanent Split Capacitor (PSC) Motor
Fig. 26 Single-Stage, Single-Phase, Standard Unit with PSC Motor
DWG No.
DRAWN BY: DATE REV
E-MAIL:
PART No.
1 STAGE - 1 PHASE - PSC MOTOR
1/2 THROUGH 6 TONS CAPACITY
FZA 4/8/2024 2CL111001
UPM I - STD
8 733 838 088
LUG
GROUND
UNIT
24VAC BY OTHERS
CBR
CO YRG
BR
24
EMS
RV
BMR
DPS
AUX
LWV
LWV
FACTORY WIRE
FIELD WIRE
OPTIONAL COMPONENTS LEGEND:
[ ] A2L - AIR TO LIQUID REFRIGERANT LEAK SENSOR
[ ] AUX - AUXILIARY RELAY
(FOR LOOP PUMP, ETC)
[ ] BMR - BLOWER MONITOR RELAY
[ ] CBR - 24V CIRCUIT BREAKER (75VA & 100VA ONLY)
[ ] CMR - COMPRESSOR MONITOR RELAY
[ ] DPS - DIFFERENTIAL PRESSURE SWITCH
[ ] DS - DISCONNECT SWITCH
[ ] EMS - ENERGY MGMT SYSTEM RELAY
[ ] HSL - HIGH TEMPERATURE SUCTION LIMIT
(WITH HOT GAS BYPASS ONLY)
[ ] LWV - LEAVING WATER VALVE
STANDARD COMPONENTS LEGEND:
BC - BLOWER MOTOR CAPACITOR
BM - BLOWER MOTOR
BR - BLOWER RELAY
CAP - COMPRESSOR CAPACITOR
CC - COMPRESSOR CONTACTOR
CS - CONDENSATE SENSOR (IN DRAIN PAN)
FS - FREEZE SENSORS
HPS - HIGH PRESSURE SWITCH
LPS - LOW PRESSURE SWITCH
RV - REVERSING VALVE (HEAT PUMPS)
GROUND
BLK (COM)
TRANSFORMER
CC
T1
L1
T2
L2
L1 L2
DS
CAP
COMP
C
R
S
NOTES:
1. SEE UNIT NAME PLATE FOR ELECTRICAL RATING.
2. ALL FIELD WIRING MUST BE IN ACCORDANCE WITH
N.E.C.-N.F.P.A. #70, COPPER CONDUCTORS ONLY - CONDUCTEURS EN CUIVRE SEULEMENT.
3. 208/230V UNITS ARE FACTORY WIRED FOR 230V OPERATION. FOR 208V OPERATION,
REMOVE PRIMARY LEAD FROM 240 TERMINAL AND CONNECT IT TO 208. CAP ALL UNUSED TERMINALS.
4. FOR ALTERNATE EMS COIL VOLTAGES CONSULT FACTORY.
5. UPM-I INCLUDES BUILT IN: 270-300 SECOND RANDOM START
300 SECOND DELAY ON BREAK
120 SECOND LOW PRESSURE BYPASS
6. "TEST" DIP SWITCH REDUCES DELAYS TO 10 SEC WHEN SET TO YES. MUST BE SET TO "NO" FOR NORMAL
OPERATION.
7. "FREEZE SENSOR" ON CONDENSER WILL BE SET TO 25°F OPERATION BY DEFAULT, IF 15°F OPERATION IS
REQUIRED, MOVE DIP SWITCH SLIDER TO THE 15°F POSITION.
8. "ALARM OUTPUT" DIP SWITCH MUST BE SET TO "PULSE" IF BLINKING T-STAT SERVICE LIGHT IS DESIRED OR IF
DDC CONNECTION IS AVAILABLE. CONT FOR NON BLINKING THERMOSTAT CONNECTION.
9. DEFAULT SETTINGS FOR UPM BOARD FROM FACTORY SHOWN. ALSO SEE INSTALLATION MANUAL.
10. ALARM OUTPUT IS NORMALLY OPEN (NO) DRY CONTACT. IF 24 VAC IS NEEDED, CONNECT R FROM TERMINAL
BLOCK TO ALR-COM TERMINAL, 24VAC WILL BE SENSED ON THE ALR-OUT WHEN THE UNIT IS IN ALARM
CONDITION. OUTPUT WILL BE PULSED IF PULSE IS SELECTED.
11. REVERSING VALVE NOT PRESENT ON UNITS WITH STRAIGHT COOL.
3
21
4
RD
BR
BC
BM
BLK
(HI)
BLU (MED)
RED (LOW)
BN
BN
OR
RD
RD
GN
BL
WT
YL
RD
YL
BK
RD
BK
GN/YL
11
SEE NOTES 5-10
RD
USE CLASS II FIELD WIRING
G_Out
G
C
OUT
COM
POWER
UNIT PROTECTION MODULE
STATUS
R
R
ALARM
FREEZE1
FREEZE2
COND
LPC
HPS
CC
LOCKOUT 4 2
RESET R Y
ALARM CONT PULSE
TEST YES NO
FREEZE1 15F 25F
FREEZE2 15F 25F
PUMP YES NO
GND
TO
DDC
OR
THERMOSTAT
CS
FS2
FS1
VT
CC
CMR
HPS
BN
YL
BL
BN
BK
WT
GN/YL
A2L
Y
HPS
LPS
HSL
BN
OR
BL
BK
BK
YL
YL
RD
GN
BL
BL
BL
BL
YL
GN
UPM STATUS LED - BLINK CODES
1
HIGH PRESSURE FAULT
2 LOW PRESSURE FAULT
3 CONDENSER FREEZE CONDITION
4 CONDENSATE OVERFLOW FAULT
5
BROWN OUT FAULT
6 EVAPORATOR FREEZE CONDITION
7 REFRIGERANT LEAKAGE
GN
BL
CLASS II POWER SUPPLY
TRANSFORMER
FOR REFERENCE ONLY Actual unit wiring may vary from this
example. Always refer to the wiring diagram attached to the unit.
56 |
RL Series Heat Pumps — 8733842393 (2024/05)

Table of Contents